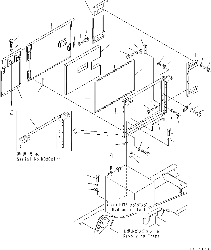
Запчасти Komatsu PC200EN-6K ПРАВ. ДВЕРЬ (КАБИНА) ЧАСТИ КОРПУСА

Схема запчастей Komatsu PC200EN-6K - ПРАВ. ДВЕРЬ (КАБИНА) ЧАСТИ КОРПУСА
1
1
2
3
4
5
6
7
8
9
10
11
12
13
14
15
16
17
18
19
20
21
22
23
24
25
26
27
28
29
30
30
31
31
32
33
34
35
36
37
38
39
40
FIT
1:1
100%

Артикул

Название

Примечание

Количество

|1

21P-54-K4973

DOOR ASS'Y

|1

21P-54-K4972

DOOR ASS'Y

|1

21P-54-K4971

DOOR ASS'Y

|1

21P-54-K4192

DOOR ASS'Y

|1

21P-54-K4191

DOOR ASS'Y

1

21P-54-K4962

FRAME

|1

21P-54-K4961

FRAME

|1

20Y-54-K8551

FRAME

2

20Y-54-K7680

COVER

|2

20Y-54-K7414

COVER

|2

20Y-54-K7413

COVER

|2

198-54-41982

LOCK ASS'Y (WELDED)

3

01010-81225

BOLT

|3

01010-81235

BOLT

|3

01010-51235

BOLT

4

01643-31232

WASHER

5

20Y-54-28291

PLATE

|5

20Y-54-33290

PLATE

6

205-54-53550

DOVE TAIL

7

01010-80612

BOLT

|7

01010-50612

BOLT

8

01643-30623

WASHER

9

20Y-54-K8010

BRACKET

|9

20Y-54-33170

BRACKET

10

01010-81225

BOLT

|10

01010-51225

BOLT

11

01643-31232

WASHER

12

205-54-51970

DOVE TAIL

13

01010-80616

BOLT

|13

01010-50616

BOLT

14

01643-30623

WASHER

15

20Y-54-K7421

PLATE

16

01010-81225

BOLT

|16

01010-51225

BOLT

17

01643-31232

WASHER

18

20E-54-K2230

BAR

19

01641-21016

WASHER

20

04050-13018

PIN,COTTER

21

20Y-54-11611

STOPPER

22

01580-11008

NUT

23

21P-54-K4950

FRAME

|23

21P-54-K4351

FRAME

|23

21P-54-K4350

FRAME

24

01010-81225

BOLT

|24

01010-51225

BOLT

25

01643-31232

WASHER

26

207-54-K2420

COVER

27

01010-81235

BOLT

|27

01010-51235

BOLT

28

01643-31232

WASHER

29

21P-54-K4360

SHEET

30

20Y-54-K7430

SEAL

31

20Y-54-K7441

SEAL

32

207-54-52690

PLATE

33

01010-81230

BOLT

|33

01010-51230

BOLT

34

01643-31232

WASHER

35

21P-54-K3131

COVER

36

175-54-34170

WASHER

37

01010-51225

BOLT

38

20Y-54-12320

CATCH

39

01010-51230

BOLT

40

01643-31232

WASHER

Выбрано товаров: 63