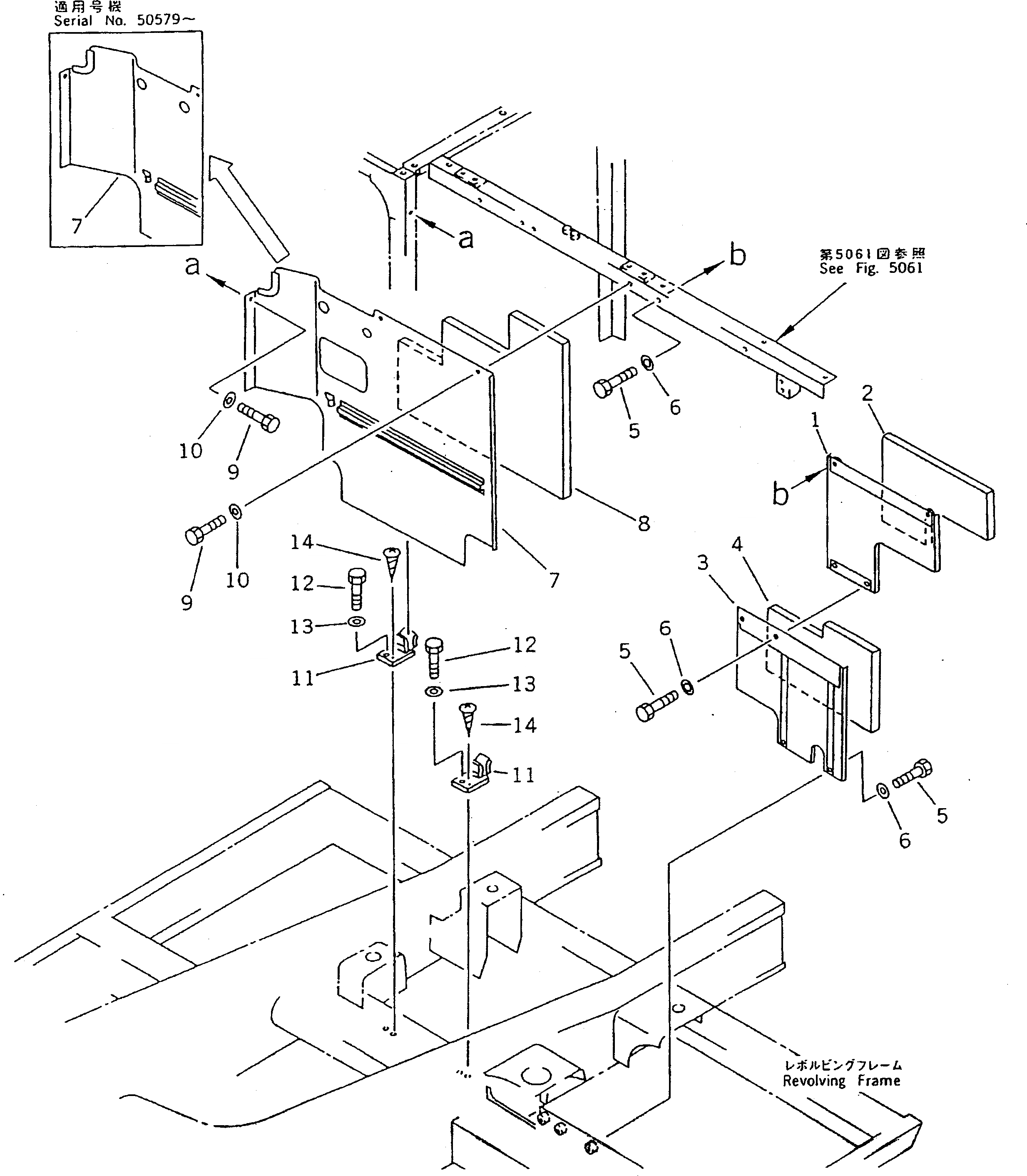
Запчасти Komatsu PC200LC-5X ПЕРЕГОРОДКА ЧАСТИ КОРПУСА

Схема запчастей Komatsu PC200LC-5X - ПЕРЕГОРОДКА ЧАСТИ КОРПУСА
FIT
1:1
100%

Артикул

Название

Примечание

Количество

1

20Y-54-16132

COVER

2

206-54-51541

SHEET

3

20Y-54-16122

COVER

4

206-54-51521

SHEET

5

01010-51230

BOLT

6

20Y-54-12670

WASHER

7

206-54-51131

COVER

8

206-54-51141

SHEET

9

01010-51230

BOLT

10

20Y-54-12670

WASHER

11

20Y-54-12320

CATCH

12

01010-51230

BOLT

13

01643-31232

WASHER

14

01370-00512

SCREW

Выбрано товаров: 14