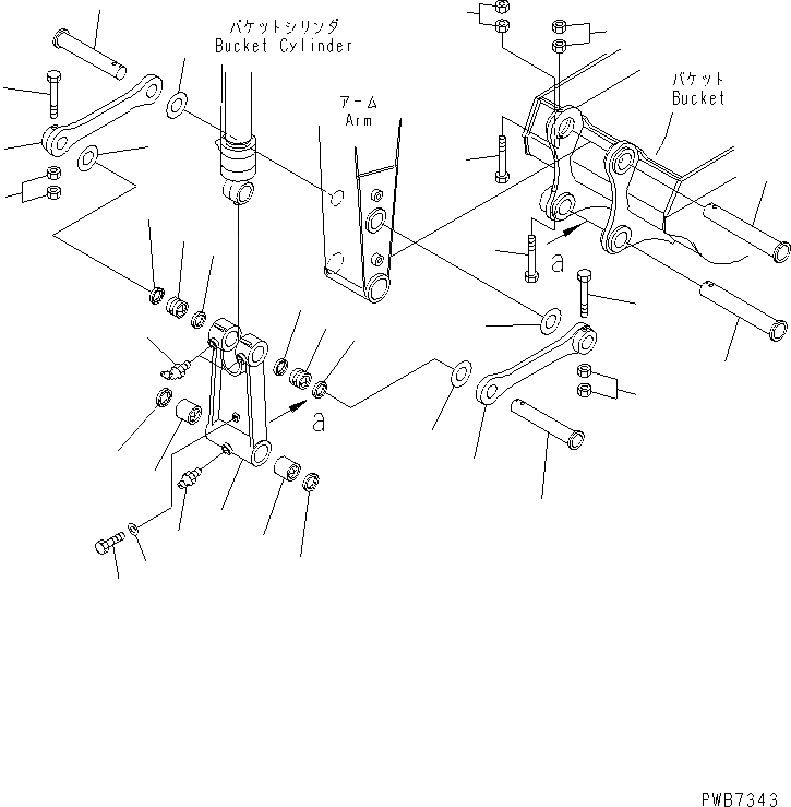
Запчасти Komatsu PC200LC-6 СОЕДИНЕНИЕ КОВША(№9-) РАБОЧЕЕ ОБОРУДОВАНИЕ

Схема запчастей Komatsu PC200LC-6 - СОЕДИНЕНИЕ КОВША(№9-) РАБОЧЕЕ ОБОРУДОВАНИЕ
1
2
2
3
3
4
5
5A
5B
6
6
6
6
7
7
8
8
9
9
10
10
11
11
12
12
13
13
14
15
16
17
18
19
FIT
1:1
100%

Артикул

Название

Примечание

Количество

|$2

20Y-70-00071

LINK ASS'Y

1

LINK

2

205-70-73180

BUSHING

3

205-70-67150

BUSHING

4

07020-00675

FITTING

5

07020-00000

FITTING

5A

01010-81220

BOLT

5B

01643-31232

WASHER

6

20Y-70-23220

SEAL

6

21K-70-12180

SEAL

7

20Y-70-23230

SEAL

7

205-70-62140

SEAL

8

205-70-73130

LINK

9

20Y-70-11320

SPACER, 0.8MM

10

20Y-70-11330

SPACER, 1.5MM

11

205-70-73160

PIN

12

205-70-73190

BOLT

13

01580-12016

NUT

14

205-70-73270

PIN

15

205-70-73190

BOLT

16

01580-12016

NUT

17

205-70-73270

PIN

18

362-46-11210

BOLT

19

01580-12016

NUT

Выбрано товаров: 24