Запчасти Komatsu PC200LC-8 НИЖН. КРЫШКА (ДЛЯ ТОПЛИВН. REFILL НАСОС) (С ВОДООТДЕЛИТЕЛЕМ)(№-) ЧАСТИ КОРПУСА

Схема запчастей Komatsu PC200LC-8 - НИЖН. КРЫШКА (ДЛЯ ТОПЛИВН. REFILL НАСОС) (С ВОДООТДЕЛИТЕЛЕМ)(№-) ЧАСТИ КОРПУСА
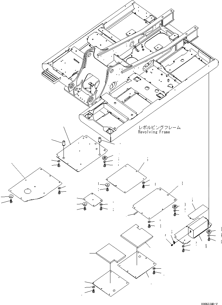
1
2
3
4
5
6
7
8
9
10
11
12
13
14
15
16
17
18
19
20
21
22
23
24
25
26
27
27
28
29
30
31
32
33
34
35
36
37
38
39
40
41
42
43
44
45
46
FIT
1:1
100%

Артикул

Название

Примечание

Количество

|$2

20Y-54-73791

COVER

1

COVER

2

20Y-54-61770

SHEET

|$6

20Y-54-73810

COVER

3

COVER

4

20Y-54-61780

SHEET

5

20Y-54-71863

COVER

6

01010-81230

BOLT

7

01643-31232

WASHER

8

01010-81230

BOLT

9

01643-31232

WASHER

10

01010-81230

BOLT

11

175-54-34170

WASHER

12

01010-81230

BOLT

13

01643-31232

WASHER

|$26

20Y-54-71811

COVER

14

COVER

15

20Y-54-73870

COVER

16

195-57-11530

CATCH CLIP

17

01023-20512

SCREW

18

01010-81230

BOLT

19

01643-31232

WASHER

20

20Y-54-12550

COLLAR

21

01010-81230

BOLT

22

01643-31232

WASHER

23

20Y-54-71831

COVER

24

20Y-54-61890

SHEET

25

20Y-54-71851

COVER

|$49

20Y-54-74780

COVER

26

COVER

27

22U-54-24760

GROMMET

28

01010-81230

BOLT

29

01643-31232

WASHER

30

20Y-54-12550

COLLAR

31

01010-81230

BOLT

32

01643-31232

WASHER

33

20Y-54-61870

COVER

34

01010-81230

BOLT

35

175-54-34170

WASHER

36

01010-81230

BOLT

37

01643-31232

WASHER

38

01010-81230

BOLT

39

175-54-34170

WASHER

40

01010-81230

BOLT

41

01643-31232

WASHER

42

01010-81230

BOLT

43

01643-31232

WASHER

44

20Y-54-12550

COLLAR

45

01010-81230

BOLT

46

01643-31232

WASHER

Выбрано товаров: 50