Запчасти Komatsu PC200LL-8 E-A ЭЛЕКТРОПРОВОДКА КРЕПЛЕНИЕS И КРЕПЛЕНИЕ (/) ЭЛЕКТРИКА

Схема запчастей Komatsu PC200LL-8 - E-A ЭЛЕКТРОПРОВОДКА КРЕПЛЕНИЕS И КРЕПЛЕНИЕ (/) ЭЛЕКТРИКА
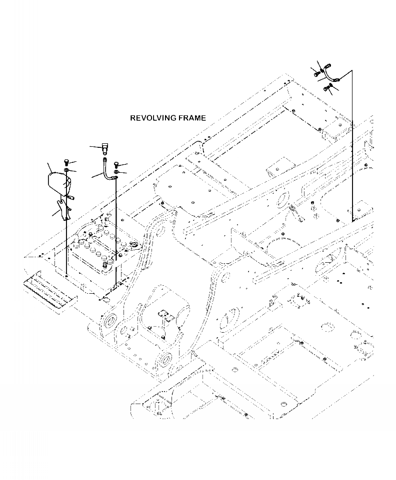
11
10
9
11
10
2
5
7
3
8
4
1
6
FIT
1:1
100%

Артикул

Название

Примечание

Количество

1

08028-43030

CABLE

2

08038-22511

CAP

3

01010-81025

BOLT

4

01643-31032

WASHER

5

21T-06-32810

WORK LAMP

|$5

421-06-23330

BULB, 70 W

6

20Y-06-41690

BRACKET

7

01010-81230

BOLT

8

01643-31232

WASHER

9

08028-43030

CABLE

10

01010-81020

BOLT

11

01643-31032

WASHER

Выбрано товаров: 12