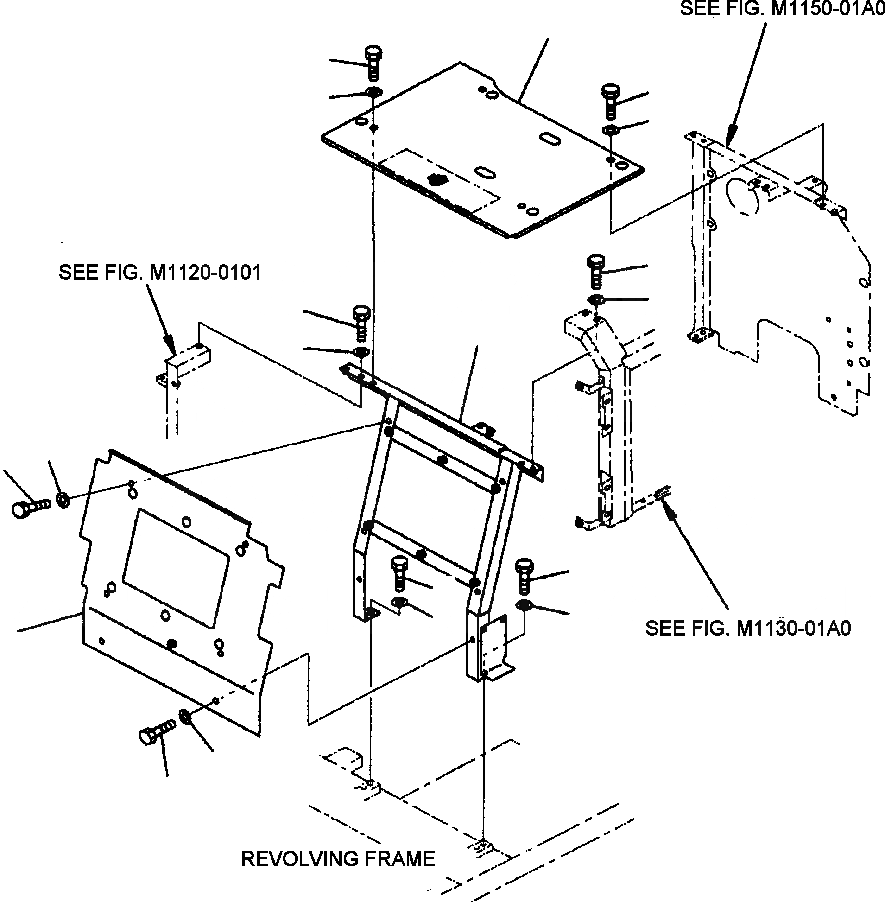
Запчасти Komatsu PC200Z-6LE FIG NO. M-A КАБИНА ПЕРЕГОРОДКА. КОНДИЦ. ВОЗДУХА ЧАСТИ КОРПУСА

Схема запчастей Komatsu PC200Z-6LE - FIG NO. M-A КАБИНА ПЕРЕГОРОДКА. КОНДИЦ. ВОЗДУХА ЧАСТИ КОРПУСА
2
2
3
3
8
1
9
8
4
9
6
5
8
8
9
9
7
6
5
FIT
1:1
100%

Артикул

Название

Примечание

Количество

1

20Y-54-25471

COVER

2

01010-81230

BOLT

3

175-54-34170

WASHER

4

20Y-979-5360

BRACKET

5

01010-81230

BOLT

6

01643-31232

WASHER

7

20Y-979-5320

COVER

8

01010-81230

BOLT

9

01643-31232

WASHER

Выбрано товаров: 9