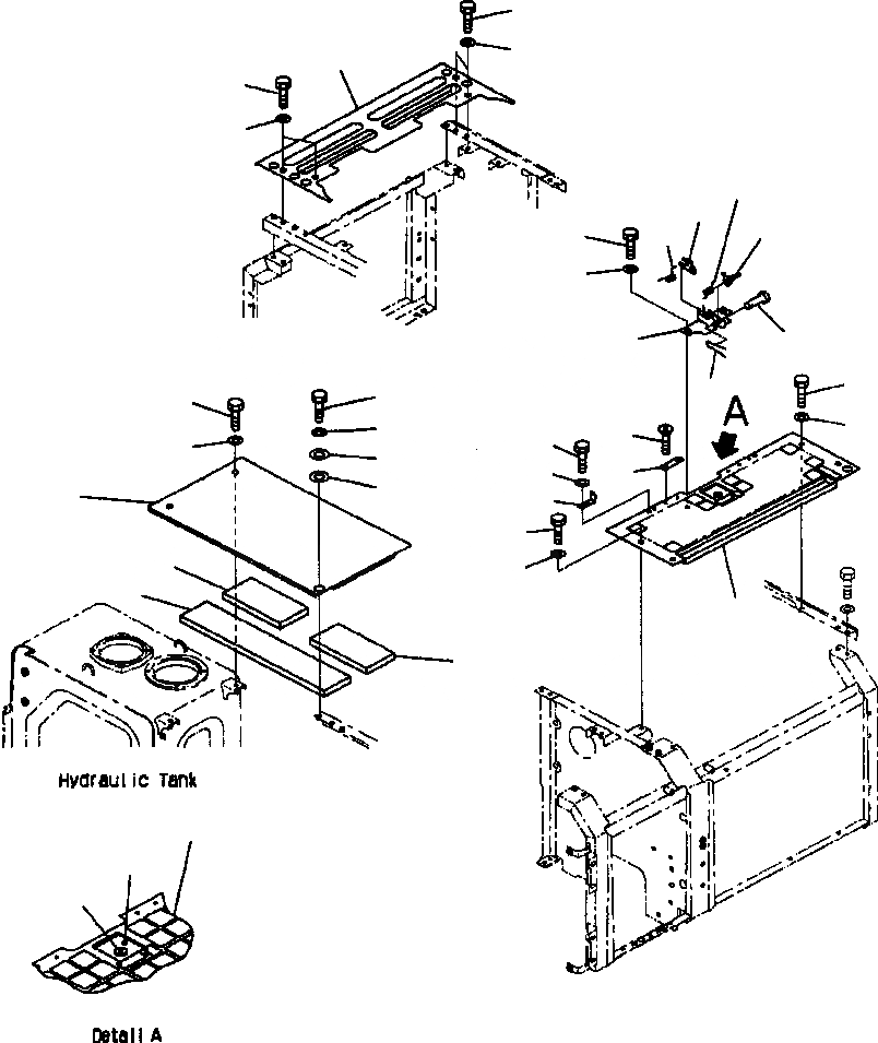
Запчасти Komatsu PC200Z-6LE FIG NO. M-A КРЫШКА- ВЕРХН. КАБИНА ЧАСТИ КОРПУСА

Схема запчастей Komatsu PC200Z-6LE - FIG NO. M-A КРЫШКА- ВЕРХН. КАБИНА ЧАСТИ КОРПУСА
28
29
10
28
29
17
16
14
21
22
15
30
20
6
4
31
7
27
24
5
8
25
26
9
23
30
3
31
2
11
3
11
12
13
1
18
19
FIT
1:1
100%

Артикул

Название

Примечание

Количество

1

20Y-54-25481

COVER

2

20Y-54-25720

SHEET

3

20Y-54-25730

SHEET

4

01010-81230

BOLT

5

175-54-34170

WASHER

6

01010-81230

BOLT

7

01643-31232

WASHER

8

20Y-54-19930

COLLAR

9

20Y-54-19920

PLATE

10

20Y-54-25451

COVER

11

20Y-54-26510

COVER

12

20Y-54-25850

LOCK

13

20Y-54-27540

LOCK ASSEMBLY

|$13

20Y-54-27502

LOCK ASSEMBLY

14

20Y-54-27511

PLATE

15

20Y-54-27522

BRACKET

16

21K-54-26340

LEVER

17

21K-54-26351

SPRING

18

21K-54-26360

SPRING

19

04205-11038

PIN

20

04050-13020

PIN

21

01010-81025

BOLT

22

01643-31032

WASHER

23

20Y-54-27182

BRACKET

24

01010-81025

BOLT

25

01643-31032

WASHER

26

205-54-68440

PLATE

27

01224-40616

SCREW

28

01010-81230

BOLT

29

175-54-34170

WASHER

30

01010-81230

BOLT

31

01643-31232

WASHER

Выбрано товаров: 0