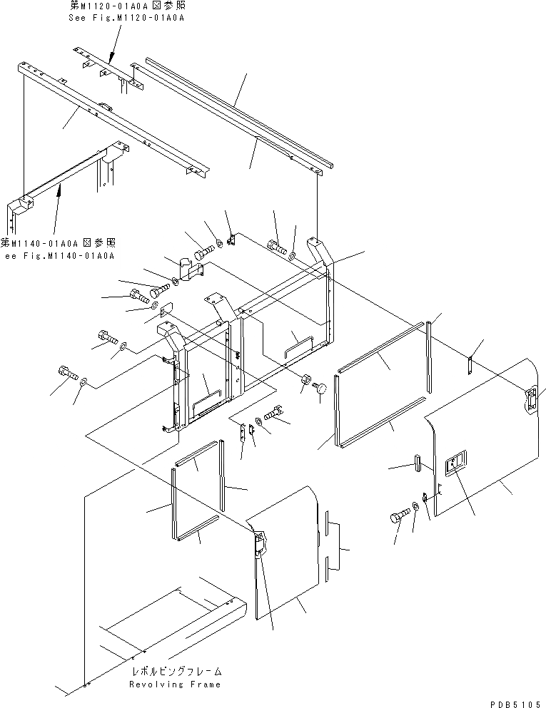
Запчасти Komatsu PC210-6 ЛЕВ. ДВЕРЬ (ДВЕРЬ) (КАБИНА)(№9-9) ЧАСТИ КОРПУСА

Схема запчастей Komatsu PC210-6 - ЛЕВ. ДВЕРЬ (ДВЕРЬ) (КАБИНА)(№9-9) ЧАСТИ КОРПУСА
1
2
3
4
5
6
7
8
9
10
11
12
13
14
15
16
17
18
19
20
21
22
23
24
25
26
27
28
28
29
29
30
30
30
30
31
32
33
34
35
36
37
38
39
40
41
FIT
1:1
100%

Артикул

Название

Примечание

Количество

1

20Y-54-28114

COVER

2

20Y-54-28161

HINGE (WELDED)

3

20Y-54-28281

SHEET

4

01010-81225

BOLT

5

01643-31232

WASHER

6

20Y-54-25910

COVER

7

20Y-54-28161

HINGE (WELDED)

8

198-54-41982

LOCK ASS'Y

9

20Y-54-28191

SHEET

10

205-54-53550

DOVE TAIL

11

01010-80612

BOLT

12

01643-30623

WASHER

13

01010-81235

BOLT

14

01643-31232

WASHER

15

20Y-54-28290

PLATE

16

20Y-54-25311

FRAME

17

20Y-54-28170

BRACKET

18

01010-81230

BOLT

19

01643-31232

WASHER

20

205-54-51970

DOVE TAIL

21

01010-80616

BOLT

22

01643-30623

WASHER

23

20Y-54-28182

PLATE

24

01010-81230

BOLT

25

01643-31232

WASHER

26

20Y-54-29232

BAR

27

20Y-54-29232

BAR

28

20Y-54-29241

SEAL

29

20Y-54-29251

SEAL

30

20Y-54-29261

SEAL

31

20Y-54-27341

BRACKET

32

01010-81230

BOLT

33

01643-31232

WASHER

34

20Y-54-12920

CLAMP

35

01010-81025

BOLT

36

01643-31032

WASHER

37

20Y-54-11611

STOPPER

38

01580-11008

NUT

39

20Y-54-25351

FRAME

40

20Y-54-29271

SHEET

41

20Y-54-25361

FRAME

Выбрано товаров: 41