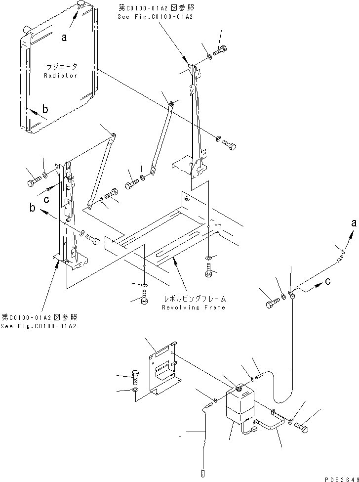
Запчасти Komatsu PC210-6K ОХЛАЖД-Е (ВТОРИЧН. БАК И КРЕПЛЕНИЕ РАДИАТОРА) (ЖЕСТК. МАСЛООХЛАДИТЕЛЬ)(№K-K999) СИСТЕМА ОХЛАЖДЕНИЯ

Схема запчастей Komatsu PC210-6K - ОХЛАЖД-Е (ВТОРИЧН. БАК И КРЕПЛЕНИЕ РАДИАТОРА) (ЖЕСТК. МАСЛООХЛАДИТЕЛЬ)(№K-K999) СИСТЕМА ОХЛАЖДЕНИЯ
1
2
3
4
5
6
7
8
9
10
10
11
12
12A
12B
12C
13
13
14
14
15
15
16
16
17
17
18
18
19
19
FIT
1:1
100%

Артикул

Название

Примечание

Количество

1

20Y-06-15240

TANK ASS'Y

|1

20Y-06-28990

TANK

2

205-03-71532

CAP

|2

205-03-71540

PACKING

3

20Y-03-28450

HOSE

4

206-03-43340

CLIP

5

20Y-03-K1251

BRACKET

|5

20Y-03-K1250

BRACKET

6

20E-03-K1110

BRACKET

|6

20Y-03-28960

BRACKET

7

01010-50820

BOLT

|7

01010-51220

BOLT

8

01643-30823

WASHER

|8

01643-31232

WASHER

9

20Y-03-28460

HOSE

10

206-03-43340

CLIP

11

01010-51220

BOLT

12

01643-31232

WASHER

12A

08036-11210

CLIP

12B

01010-51020

BOLT

12C

01643-31032

WASHER

13

20Y-03-K1260

STAY

14

01010-51635

BOLT

15

01010-51635

BOLT

16

01643-31645

WASHER

17

21T-54-16150

WASHER

18

01016-51250

BOLT

19

01643-31232

WASHER

Выбрано товаров: 28