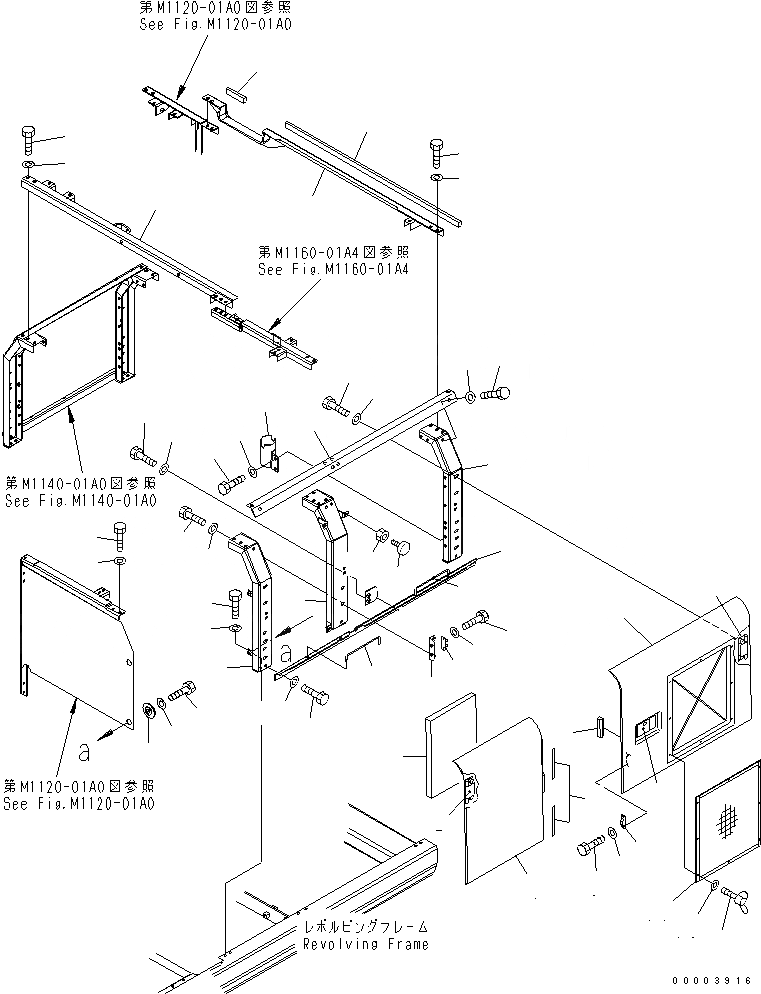
Запчасти Komatsu PC210-7-CA ЛЕВ. ДВЕРЬ (КАБИНА) (DUST ЗАЩИТА СПЕЦ-Я.) ЧАСТИ КОРПУСА

Схема запчастей Komatsu PC210-7-CA - ЛЕВ. ДВЕРЬ (КАБИНА) (DUST ЗАЩИТА СПЕЦ-Я.) ЧАСТИ КОРПУСА
1
2
3
4
5
6
7
8
9
10
11
12
13
14
15
16
17
18
19
20
21
22
23
24
25
26
27
28
29
30
31
32
33
34
35
36
37
37
38
39
40
41
42
43
44
45
46
47
48
49
50
51
52
53
54
55
FIT
1:1
100%

Артикул

Название

Примечание

Количество

1

20Y-54-61143

COVER

2

20Y-54-63410

HINGE (WELDED)

3

20Y-54-63390

SHEET

|4

20Y-54-62811

COVER

4

COVER

5

198-54-41982

LOCK ASS'Y

6

20Y-54-63410

HINGE

7

20Y-54-61482

SHEET

8

205-54-53550

DOVE TAIL

9

01010-80612

BOLT

10

01643-30623

WASHER

11

20Y-54-31320

NET

12

01434-10616

BOLT¤ WING

13

01643-30823

WASHER

14

01010-81230

BOLT

15

01643-31232

WASHER

16

20Y-54-61311

FRAME

17

20Y-54-61322

FRAME

18

20Y-54-61331

FRAME

19

20Y-54-61341

PLATE

20

01010-81225

BOLT

21

01643-31232

WASHER

22

20Y-54-62830

FRAME

23

01010-81230

BOLT

24

01643-31232

WASHER

25

20Y-54-28170

BRACKET

26

01010-81230

BOLT

27

01643-31232

WASHER

28

205-54-51970

DOVE TAIL

29

01010-80616

BOLT

30

01643-30623

WASHER

31

20Y-54-61470

PLATE

32

01010-81230

BOLT

33

01643-31232

WASHER

34

20Y-54-61371

BRACKET

35

01010-81230

BOLT

36

01643-31232

WASHER

37

20Y-54-29231

BAR

38

20Y-54-11611

STOPPER

39

01580-11008

NUT

40

20Y-54-61461

SHEET

41

20Y-54-61221

FRAME

|42

20Y-54-62740

FRAME

42

FRAME

43

20Y-54-63341

SHEET

44

20Y-54-63351

SHEET

45

01010-81230

BOLT

46

01643-31232

WASHER

47

01010-81230

BOLT

48

01643-31232

WASHER

49

01010-81230

BOLT

50

01643-31232

WASHER

51

20Y-54-12550

COLLAR

52

01010-81225

BOLT

53

01643-31232

WASHER

54

01010-81230

BOLT

55

01643-31232

WASHER

Выбрано товаров: 57