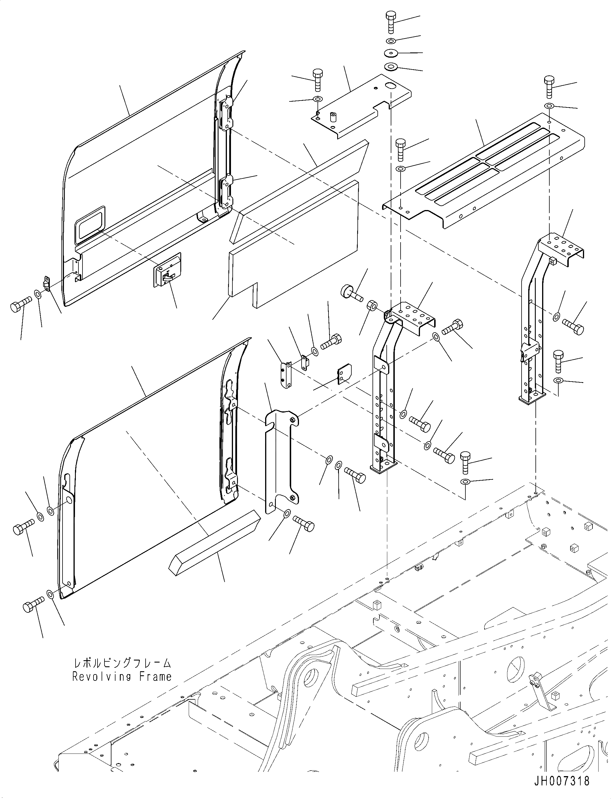
Запчасти Komatsu PC210LC-10 MG PREP ДВЕРЬ ПРАВ. ДВЕРЬ ПРАВ.

Схема запчастей Komatsu PC210LC-10 MG PREP - ДВЕРЬ ПРАВ. ДВЕРЬ ПРАВ.
42
43
39
38
3
4
5
1
4
5
37
40
41
26
7
7
6
8
25
32
14
16
15
35
36
34
35
36
33
36
35
34
36
35
11
27
17
20
22
21
23
2
28
10
9
30
31
29
24
13
12
19
18
30
31
FIT
1:1
100%

Артикул

Название

Примечание

Количество

1

2A5-54-13980

Frame

2

2A5-54-15292

Frame

3

2A5-54-15311

Cover

4

01010-81230

Bolt

5

01643-31232

Washer

6

2A5-54-15320

Cover

7

20Y-54-63414

Hinge, Welded

8

20Y-54-71491

Lock, Welded

9

01010-81225

Bolt

10

124-54-26540

Washer

11

20Y-54-61470

Plate

12

01010-81225

Bolt

13

01643-31232

Washer

14

205-54-53550

Dovetail

15

01010-80612

Bolt

16

01643-30623

Washer

17

20Y-54-28170

Bracket

18

01010-81225

Bolt

19

01643-31232

Washer

20

205-54-51971

Dovetail

21

01010-80616

Bolt

22

01643-30623

Washer

23

20Y-54-11611

Stopper

24

01580-11008

Nut

25

2A5-54-11861

Sheet

26

2A5-54-11871

Sheet

27

2A5-54-15331

Plate

28

01010-81230

Bolt

29

01643-31232

Washer

30

01010-81230

Bolt

31

01643-31232

Washer

|$31

2A5-54-16251

Cover

33

2A5-54-16260

Sheet

34

208-54-57180

Collar

35

01010-81230

Bolt

36

01643-31232

Washer

37

2A5-54-K2090

Cover

38

20Y-54-61790

Plate

39

20Y-54-61990

Collar

40

01010-81230

Bolt

41

01643-31232

Washer

42

01010-81240

Bolt

43

01643-31232

Washer

Выбрано товаров: 43