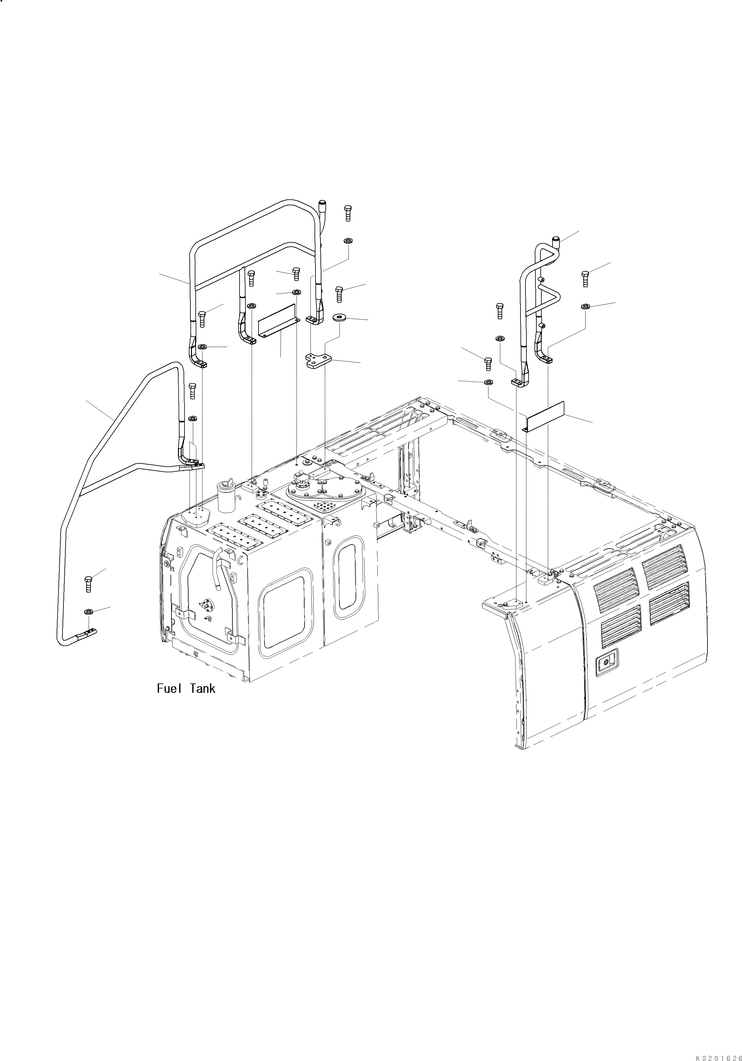
Запчасти Komatsu PC210LC-10 MG PREP HANDRAIL HANDRAIL

Схема запчастей Komatsu PC210LC-10 MG PREP - HANDRAIL HANDRAIL
9
8
7
17
18
16
15
14
13
4
5
6
11
12
10
1
2
3
FIT
1:1
100%

Артикул

Название

Примечание

Количество

1

2A5-54-15361

Handrail

2

01010-81240

Bolt

3

01643-31232

Washer

4

2A5-54-K1161

Handrail

5

01010-81240

Bolt

6

01643-31232

Washer

7

209-54-14650

Washer

8

01010-81240

Bolt

9

2A5-54-K1271

Plate

10

2A5-54-15281

Plate

11

01010-81230

Bolt

12

01643-31232

Washer

13

2A5-54-K1170

Handrail

14

01010-81245

Bolt

15

01643-31232

Washer

16

2A5-54-15281

Plate

17

01010-81230

Bolt

18

01643-31232

Washer

Выбрано товаров: 18