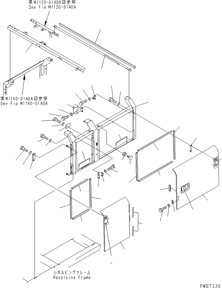
Запчасти Komatsu PC210LC-6 ЛЕВ. ДВЕРЬ (ДВЕРЬ) (КАБИНА)(№9-) ЧАСТИ КОРПУСА

Схема запчастей Komatsu PC210LC-6 - ЛЕВ. ДВЕРЬ (ДВЕРЬ) (КАБИНА)(№9-) ЧАСТИ КОРПУСА
1
2
3
4
5
6
7
8
9
10
11
12
13
14
15
16
17
18
19
20
21
22
23
24
25
26
27
28
29
29
30
30
31
31
31
31
32
33
34
35
36
37
38
39
40
41
42
FIT
1:1
100%

Артикул

Название

Примечание

Количество

1

20Y-54-28115

COVER

2

203-54-62180

HINGE (WELDED)

3

20Y-54-63390

SHEET

|3

20Y-54-28281

SHEET

4

20Y-54-28390

PLATE

5

01010-81235

BOLT

6

01643-31232

WASHER

7

20Y-54-25912

COVER

|7

20Y-54-25911

COVER

8

207-54-61870

HINGE (WELDED)

|8

203-54-62180

HINGE (WELDED)

9

198-54-41982

LOCK ASS'Y

10

20Y-54-28191

SHEET

11

205-54-53550

DOVE TAIL

12

01010-80612

BOLT

13

01643-30623

WASHER

14

01010-81230

BOLT

|14

01010-81235

BOLT

15

01643-31232

WASHER

16

20Y-54-28291

PLATE

17

20Y-54-25311

FRAME

18

20Y-54-28170

BRACKET

19

01010-81230

BOLT

20

01643-31232

WASHER

21

205-54-51970

DOVE TAIL

22

01010-80616

BOLT

23

01643-30623

WASHER

24

20Y-54-28182

PLATE

25

01010-81230

BOLT

26

01643-31232

WASHER

27

20Y-54-29232

BAR

28

20Y-54-29232

BAR

29

20Y-54-29241

SEAL

30

20Y-54-29251

SEAL

31

20Y-54-29261

SEAL

32

20Y-54-27341

BRACKET

33

01010-81230

BOLT

34

01643-31232

WASHER

35

20Y-54-12920

CLAMP

36

01010-81025

BOLT

37

01643-31032

WASHER

38

20Y-54-11611

STOPPER

39

01580-11008

NUT

40

20Y-54-25351

FRAME

41

20Y-54-29271

SHEET

42

20Y-54-25361

FRAME

Выбрано товаров: 46