Запчасти Komatsu PC210LC-6G ОСНОВНАЯ РАМА (С F.O.P.S.)(№9-9) ОСНОВНАЯ РАМА И ЕЕ ЧАСТИ

Схема запчастей Komatsu PC210LC-6G - ОСНОВНАЯ РАМА (С F.O.P.S.)(№9-9) ОСНОВНАЯ РАМА И ЕЕ ЧАСТИ
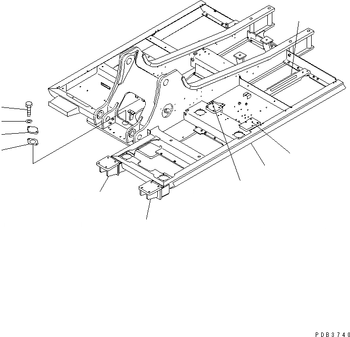
1
2
3
4
5
6
7
8
9
10
FIT
1:1
100%

Артикул

Название

Примечание

Количество

1

20Y-46-25710

FRAME

2

20Y-956-2251

BRACKET,L.H. (WELDED)

3

20Y-956-2261

BRACKET,R.H. (WELDED)

4

20Y-956-2310

BRACKET,L.H. (WELDED)

5

20Y-956-2320

BRACKET,R.H. (WELDED)

6

205-30-71181

COVER

7

205-30-71191

GASKET

8

01010-51230

BOLT

9

01643-31232

WASHER

10

20Y-54-28960

SHEET

Выбрано товаров: 10