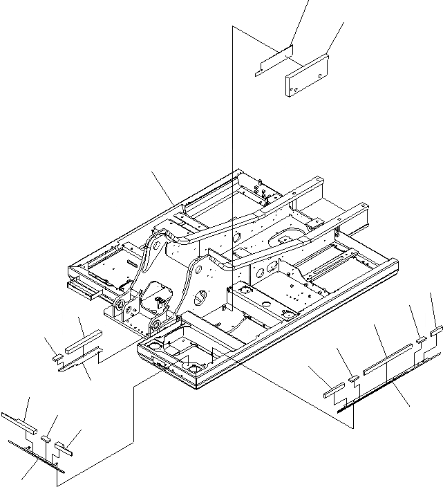
Запчасти Komatsu PC210MH-8 ОСНОВНАЯ РАМА (STD) TABLE OF CONTENTS PCMH-8

Схема запчастей Komatsu PC210MH-8 - ОСНОВНАЯ РАМА (STD) TABLE OF CONTENTS PCMH-8
14
15
9
7
6
7
8
5
1
3
4
2
13
12
11
10
FIT
1:1
100%

Артикул

Название

Примечание

Количество

1

20Y-46-KA680

FRAME (STD CAB)

|2

20Y-46-42411

COVER

2

20Y-46-42270

COVER

3

20Y-46-42231

SEAL

4

20Y-46-42460

SHEET

|5

20Y-46-42422

COVER

5

20Y-46-42281

COVER

6

20Y-46-42251

SEAL

7

20Y-46-42460

SHEET

8

20Y-46-42470

SEAL

9

20Y-46-42480

SEAL

|10

20Y-46-42431

COVER

10

20Y-46-42290

COVER

11

20Y-46-42241

SEAL

12

20Y-46-42460

SHEET

13

20Y-46-42490

SEAL

|14

20Y-46-42440

COVER

14

20Y-46-42381

COVER

15

20Y-46-42260

SHEET

Выбрано товаров: 0