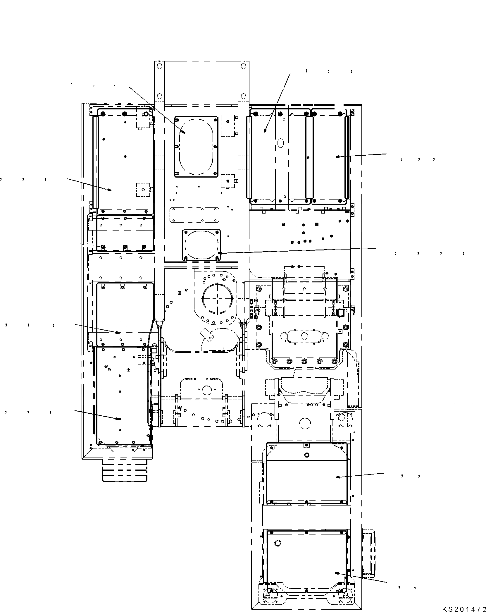
Запчасти Komatsu PC210MH-8 STD НИЖН.КРЫШКИ (LIFT КАБИНА) (№K879-UP) TABLE OF CONTENTS PCMH-8

Схема запчастей Komatsu PC210MH-8 - STD НИЖН.КРЫШКИ (LIFT КАБИНА) (№K879-UP) TABLE OF CONTENTS PCMH-8
19
18
17
16
15
28
27
26
25
7
8
9
10
11
12
13
14
20
21
22
23
24
4
5
6
1
2
3
38
37
36
35
34
33
32
31
30
29
FIT
1:1
100%

Артикул

Название

Примечание

Количество

1

20Y-54-84350

COVER

2

01010-81230

BOLT

3

01643-31232

WASHER

4

20Y-54-84360

COVER

5

01010-81230

BOLT

6

01643-31232

WASHER

7

20Y-54-71811

COVER

8

20Y-54-12550

COLLAR

9

01010-81230

BOLT

10

01643-31232

WASHER

11

20Y-54-71831

COVER

12

20Y-54-12550

COLLAR

13

01010-81230

BOLT

14

01643-31232

WASHER

15

20Y-54-71851

COVER

16

175-54-34170

WASHER

17

01010-81230

BOLT

18

01643-31232

WASHER

19

01010-81230

BOLT

20

20Y-54-61870

COVER

21

175-54-34170

WASHER

22

01010-81230

BOLT

23

01643-31232

WASHER

24

01010-81230

BOLT

25

01010-81230

BOLT

26

01643-31232

WASHER

27

20Y-54-12550

COLLAR

28

20Y-54-78871

COVER

29

01010-81230

BOLT

30

01010-81230

BOLT

31

01643-31232

WASHER

32

175-54-34170

WASHER

33

20Y-54-78862

COVER

34

01010-81230

BOLT

35

01643-31232

WASHER

36

175-54-34170

WASHER

37

20Y-54-KA641

COVER

38

01010-81230

BOLT

Выбрано товаров: 38