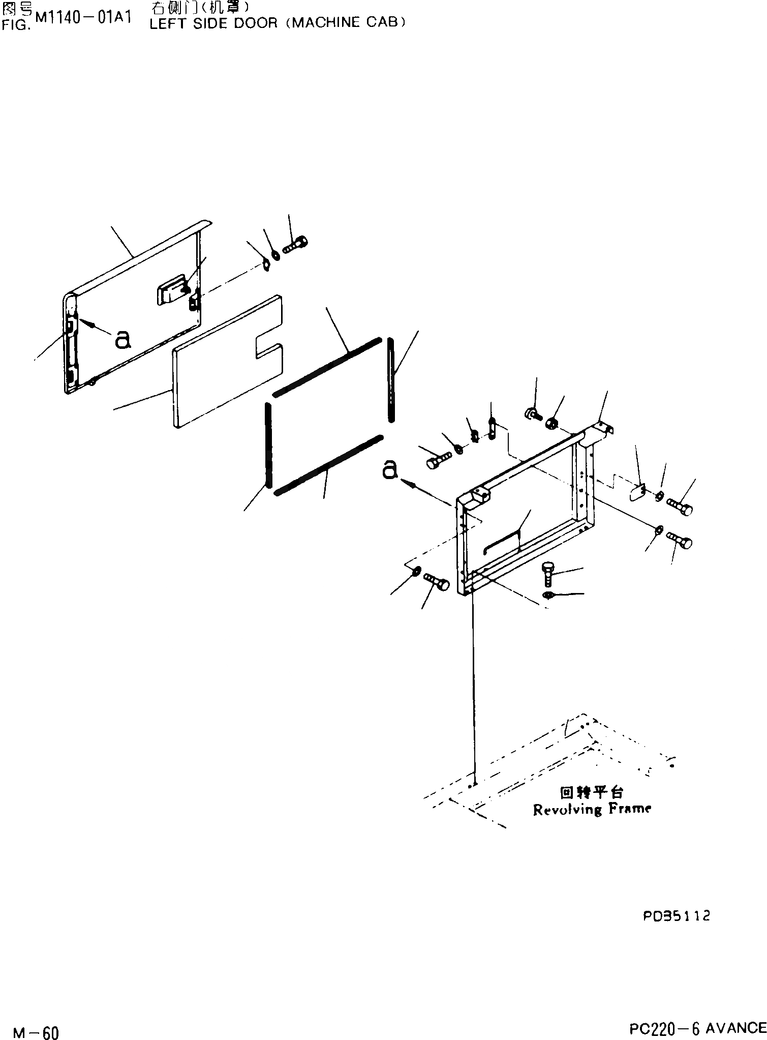
Запчасти Komatsu PC220-6 ПРАВ. ДВЕРЬ(КАБИНА) ЧАСТИ КОРПУСА]

Схема запчастей Komatsu PC220-6 - ПРАВ. ДВЕРЬ(КАБИНА) ЧАСТИ КОРПУСА]
5
6
4
3
1
2
27
22
21
8
7
15
16
14
11
23
24
10
17
19
18
12
13
25
26
20
21
22
FIT
1:1
100%

Артикул

Название

Примечание

Количество

1

20Y-54-25922

COVER

2

207-54-61870

HINGE(WELDED)

3

198-54-41982

LOCKASS'Y

4

205-54-53550

DOVETAIL

5

01010-80612

BOLT

6

01643-30623

WASHER

7

01010-81235

BOLT

8

01643-31232

WASHER

10

20Y-54-25411

FRAME

11

20Y-54-28170

BRACKET

12

01010-81230

BOLT

13

01643-31232

WASHER

14

205-54-51970

DOVETAIL

15

01010-80616

BOLT

16

01643-30623

WASHER

17

20Y-54-28182

PLATE

18

01010-81230

BOLT

19

01643-31232

WASHER

20

20Y-54-29232

BAR

21

20Y-54-29251

SEAL

22

20Y-54-29261

SEAL

23

20Y-54-11611

STOPPER

24

01580-11008

NUT

25

01010-81230

BOLT

26

01643-31232

WASHER

27

20Y-54-28362

SHEET

Выбрано товаров: 26