Запчасти Komatsu PC220-7 ЛЕВ. ДВЕРЬ (КАБИНА)(№-) ЧАСТИ КОРПУСА

Схема запчастей Komatsu PC220-7 - ЛЕВ. ДВЕРЬ (КАБИНА)(№-) ЧАСТИ КОРПУСА
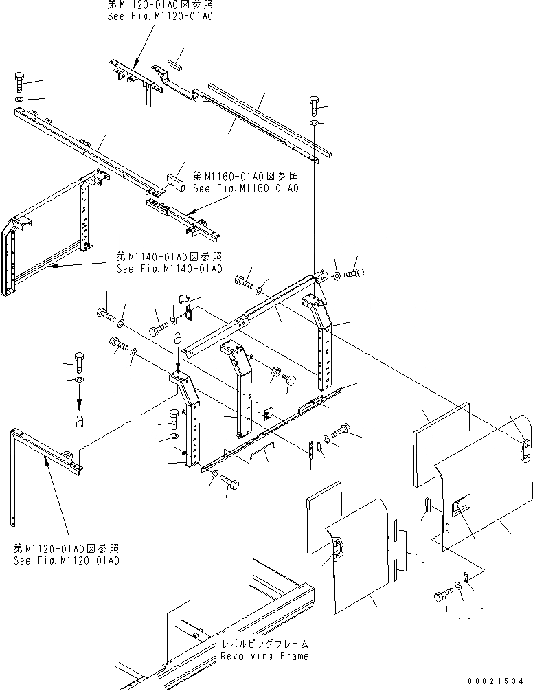
1
2
3
4
5
6
7
8
9
10
11
12
13
14
15
16
17
18
19
20
21
22
23
24
25
26
27
28
29
30
31
32
33
34
34
35
36
37
38
39
40
41
42
43
44
45
46
47
48
49
50
51
FIT
1:1
100%

Артикул

Название

Примечание

Количество

1

20Y-54-61143

COVER

2

20Y-54-63410

HINGE (WELDED)

3

20Y-54-63390

SHEET

4

20Y-54-61132

COVER

5

198-54-41982

LOCK ASS'Y (WELDED)

6

20Y-54-63410

HINGE (WELDED)

7

20Y-54-61482

SHEET

8

205-54-53550

DOVE TAIL

9

01010-80612

BOLT

10

01643-30623

WASHER

11

01010-81230

BOLT

12

01643-31232

WASHER

13

20Y-54-61311

FRAME

14

20Y-54-61323

FRAME

15

20Y-54-61331

FRAME

16

20Y-54-61342

PLATE

17

01010-81225

BOLT

18

01643-31232

WASHER

19

20Y-54-61361

FRAME

20

01010-81230

BOLT

21

01643-31232

WASHER

22

20Y-54-28170

BRACKET

23

01010-81230

BOLT

24

01643-31232

WASHER

25

205-54-51971

DOVE TAIL

25

205-54-51970

DOVE TAIL

26

01010-80616

BOLT

27

01643-30623

WASHER

28

20Y-54-61470

PLATE

29

01010-81230

BOLT

30

01643-31232

WASHER

31

20Y-54-61371

BRACKET

32

01010-81230

BOLT

33

01643-31232

WASHER

34

20Y-54-29231

BAR

35

20Y-54-11611

STOPPER

36

01580-11008

NUT

37

20Y-54-61452

SHEET

38

20Y-54-61461

SHEET

|$65

20Y-54-62240

FRAME

39

206-54-71480

SHEET

40

FRAME

|$69

20Y-54-62230

FRAME

41

FRAME

42

20Y-54-63341

SHEET

43

20Y-54-63351

SHEET

44

01010-81230

BOLT

45

01643-31232

WASHER

46

01010-81230

BOLT

47

01643-31232

WASHER

48

01010-81230

BOLT

49

01643-31232

WASHER

50

01010-81230

BOLT

51

01643-31232

WASHER

Выбрано товаров: 54