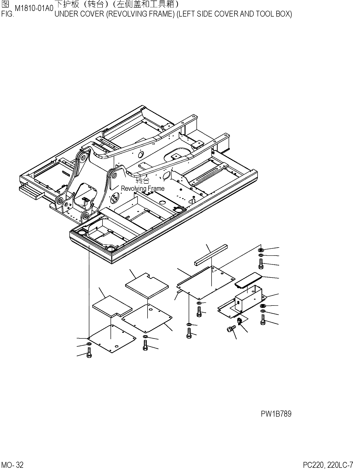
Запчасти Komatsu PC220-7 НИЖН. КРЫШКА (ОСНОВНАЯ РАМА) (ЛЕВ. КРЫШКАAND ЯЩИК Д/ИНСТРУМЕНТА) ЧАСТИ КОРПУСА]

Схема запчастей Komatsu PC220-7 - НИЖН. КРЫШКА (ОСНОВНАЯ РАМА) (ЛЕВ. КРЫШКАAND ЯЩИК Д/ИНСТРУМЕНТА) ЧАСТИ КОРПУСА]
2
4
1
13
12
12
13
3
7
5
6
17
16
15
14
11
10
19
20
18
8
9
21
22
23
FIT
1:1
100%

Артикул

Название

Примечание

Количество

|$1

20Y-54-62110

COVER

1

COVER

2

22Y-54-D1820

SHEET

|$4

20Y-54-62120

COVER

3

COVER

4

20Y-54-D1830

SHEET

5

20Y-54-61852

COVER

6

20Y-54-61861

SHEET

7

20Y-54-61890

SHEET

|$10

20Y-54-62140

COVER

8

COVER

9

22U-54-23620

COVER

10

195-57-11530

CATCHER

11

01023-20512

SCREW

12

01010-81230

BOLT

13

01643-31232

WASHER

14

01010-81230

BOLT

15

01643-31232

WASHER

16

01010-81230

BOLT

17

01643-31232

WASHER

18

20Y-54-12550

COLLAR

19

01010-81230

BOLT

20

01643-31232

WASHER

21

01010-81230

BOLT

22

01643-31232

WASHER

23

20Y-54-12550

COLLAR

Выбрано товаров: 26