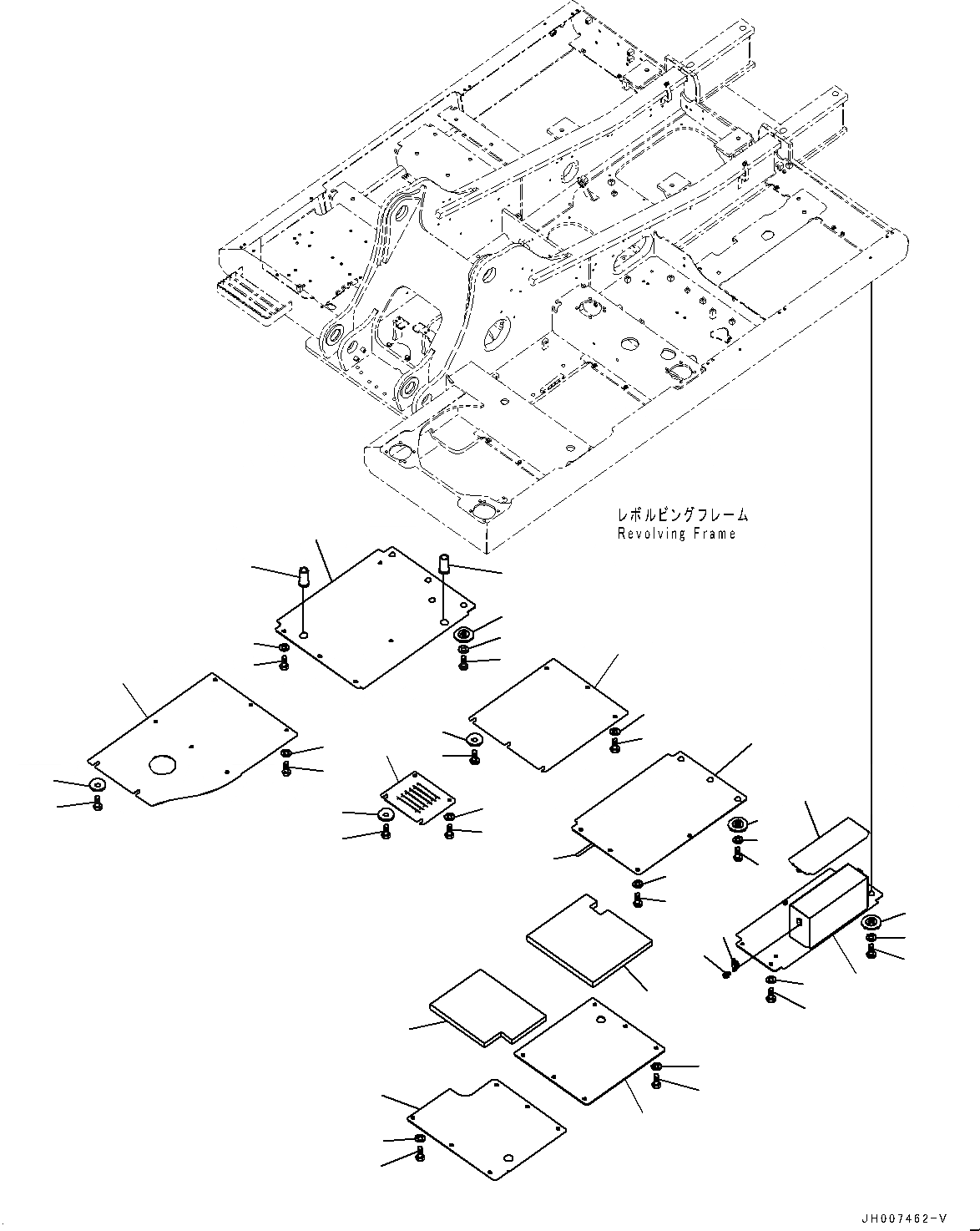
Запчасти Komatsu PC220-8M0 НИЖН. КРЫШКА (№-) НИЖН. КРЫШКА

Схема запчастей Komatsu PC220-8M0 - НИЖН. КРЫШКА (№-) НИЖН. КРЫШКА
7
6
3
4
9
8
14
16
15
17
20
19
18
22
21
23
24
29
28
30
32
31
26
27
27
44
46
45
43
42
35
34
37
36
25
39
38
41
40
11
10
13
12
33
1
2
5
FIT
1:1
100%

Артикул

Название

Примечание

Количество

|$0

20Y-54-77911

Cover

1

20Y-54-61770

Sheet

2

Cover

2

20Y-54-73810

Cover

3

Cover

4

20Y-54-61780

Sheet

5

20Y-54-71863

Cover

6

01010-81230

Bolt

7

01643-31232

Washer

8

01010-81230

Bolt

9

01643-31232

Washer

10

01010-81230

Bolt

11

175-54-34170

Washer

12

01010-81230

Bolt

13

01643-31232

Washer

13

20Y-54-71811

Cover

14

Cover

15

20Y-54-73870

Cover

16

195-57-11530

Clip, Catch

17

01023-20512

Screw

18

01010-81230

Bolt

19

01643-31232

Washer

20

20Y-54-12550

Collar

21

01010-81230

Bolt

22

01643-31232

Washer

|$25

20Y-54-71831

Cover

23

Cover

24

20Y-54-61890

Sheet

25

20Y-54-71851

Cover

25

20Y-54-74760

Cover

26

Cover

27

22U-54-24760

Grommet

28

01010-81230

Bolt

29

01643-31232

Washer

30

20Y-54-12550

Collar

31

01010-81230

Bolt

32

01643-31232

Washer

33

20Y-54-71890

Cover

34

01010-81230

Bolt

35

175-54-34170

Washer

36

01010-81230

Bolt

37

01643-31232

Washer

38

01010-81230

Bolt

39

175-54-34170

Washer

40

01010-81230

Bolt

41

01643-31232

Washer

42

01010-81230

Bolt

43

01643-31232

Washer

44

20Y-54-12550

Collar

45

01010-81230

Bolt

46

01643-31232

Washer

Выбрано товаров: 51