Запчасти Komatsu PC220-8M0 ОСНОВН. УПРАВЛЯЮЩ. КЛАПАН (-ДОПОЛН. АКТУАТОР ТРУБЫ, АККУМУЛЯТОР) (ВНУТР. ЧАСТИ) (/) H [ГИДРАВЛИКА]

Схема запчастей Komatsu PC220-8M0 - ОСНОВН. УПРАВЛЯЮЩ. КЛАПАН (-ДОПОЛН. АКТУАТОР ТРУБЫ, АККУМУЛЯТОР) (ВНУТР. ЧАСТИ) (/) H [ГИДРАВЛИКА]
16
13
7
2
11
10
16
7
12
8
19
10
7
7
5
15
7
8
14
7
10
10
11
10
1
19
9
11
17
8
13
12
16
10
12
10
11
10
18
16
3
11
4
13
10
11
10
11
11
3
10
6
10
8
9
12
14
15
16
16
16
FIT
1:1
100%

Артикул

Название

Примечание

Количество

-

723-47-29802

VALVE ASSEMBLY, CONTROL

|$2

723-47-29301

VALVE ASSEMBLY, CONTROL

|$3

723-47-29300

VALVE ASSEMBLY, CONTROL

-

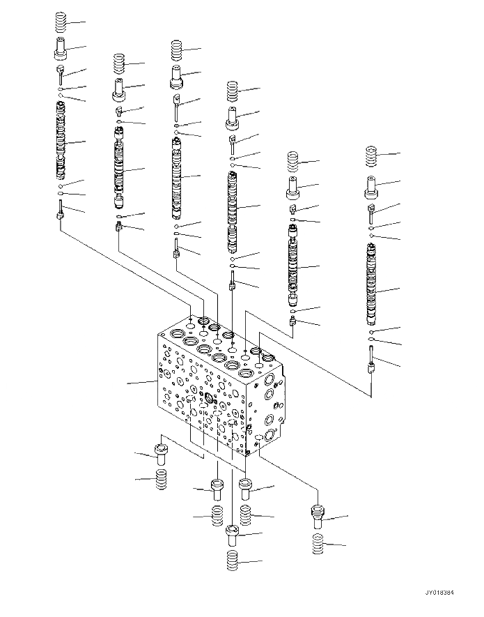
BODY SUBASSEMBLY

1

VALVE BODY

2

SPOOL

3

SPOOL

4

SPOOL

5

SPOOL

6

SPOOL

7

723-46-15130

PLUG

8

723-46-15140

PLUG

9

723-46-15650

PLUG

10

07002-10823

O-RING

11

708-7T-16460

BALL

12

723-46-15120

RETAINER

13

723-46-15690

RETAINER

14

723-46-15950

RETAINER

15

723-46-15880

RETAINER

16

723-46-14110

SPRING

17

723-46-14280

SPRING

18

723-46-14290

SPRING

19

723-46-14131

SPRING

Выбрано товаров: 23