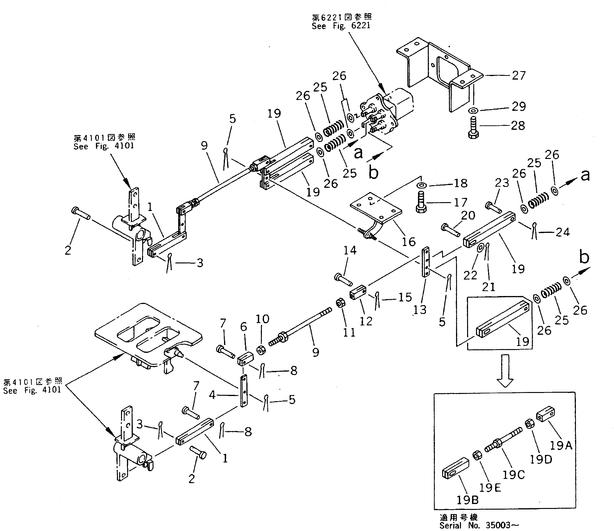
Запчасти Komatsu PC220LC-5 КОНТРОЛЬ ХОДА МЕХАНИЗМ (ДЛЯ УДЛИНН. РЫЧАГ УПРАВЛ-Е) СИСТЕМА УПРАВЛЕНИЯ И ОСНОВНАЯ РАМА

Схема запчастей Komatsu PC220LC-5 - КОНТРОЛЬ ХОДА МЕХАНИЗМ (ДЛЯ УДЛИНН. РЫЧАГ УПРАВЛ-Е) СИСТЕМА УПРАВЛЕНИЯ И ОСНОВНАЯ РАМА
FIT
1:1
100%

Артикул

Название

Примечание

Количество

G-1

20Y-43-X1201

CONTROL GROUP

1

20Y-43-11380

YOKE

2

04205-10820

PIN

|2

04205-10822

PIN

3

04050-12015

PIN,COTTER

4

20Y-43-11390

LEVER

5

04050-12015

PIN,COTTER

6

20Y-43-11420

YOKE

7

04205-10820

PIN

|7

04205-10822

PIN

8

04050-12015

PIN,COTTER

9

04248-30827

ROD

10

01580-10806

NUT

11

01508-40805

NUT,L.H. THREAD

12

20Y-43-11430

YOKE

13

20Y-43-11410

LEVER

14

04205-10820

PIN

15

04050-12015

PIN,COTTER

16

20Y-43-11440

BRACKET

17

01010-51020

BOLT

|17

01010-51025

BOLT

18

144-854-1890

WASHER

19

20Y-43-11450

YOKE

|19

20Y-43-11450

YOKE

19A

20Y-43-15360

YOKE

19B

20Y-43-15350

YOKE

19C

04248-30811

ROD

19D

01508-40805

NUT

19E

01580-10806

NUT

20

04205-10822

PIN

21

04050-12015

PIN,COTTER

22

01643-50823

WASHER

23

04205-10620

PIN

24

04050-11612

PIN,COTTER

25

20Y-43-11480

SPRING

|25

20Y-43-15330

SPRING

26

01641-21223

WASHER

27

20Y-43-15151

BRACKET

28

01010-51025

BOLT

29

01643-31032

WASHER

Выбрано товаров: 40