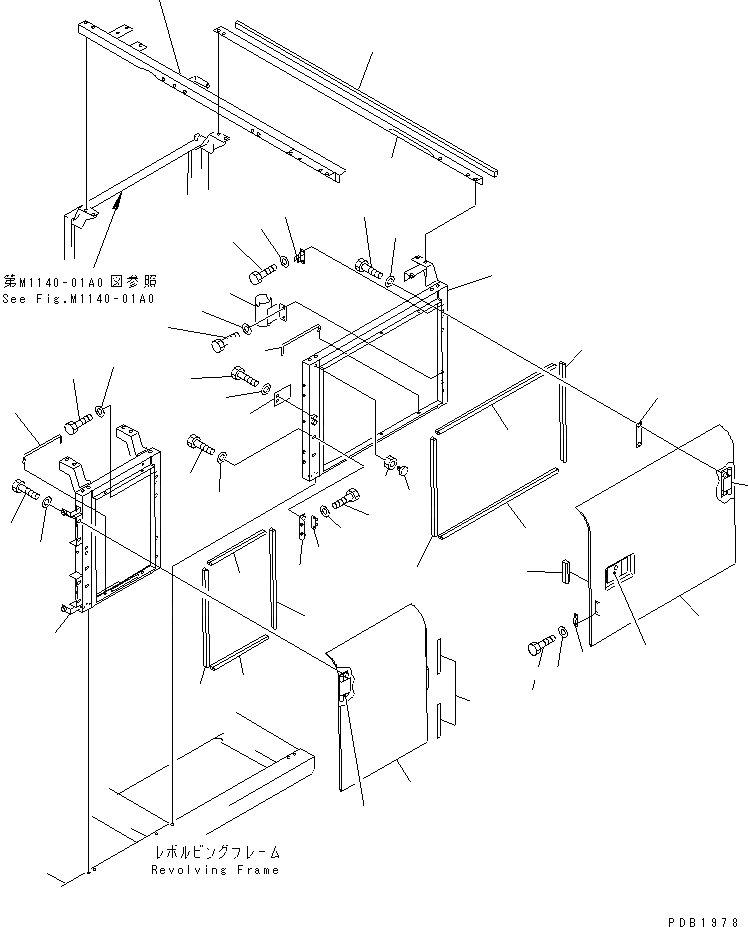
Запчасти Komatsu PC220LC-6 ЛЕВ. ДВЕРЬ (ДВЕРЬ) (КАБИНА)(№7-7) ЧАСТИ КОРПУСА

Схема запчастей Komatsu PC220LC-6 - ЛЕВ. ДВЕРЬ (ДВЕРЬ) (КАБИНА)(№7-7) ЧАСТИ КОРПУСА
1
2
3
4
5
6
7
8
9
10
11
12
13
14
15
16
17
18
19
20
21
22
23
24
25
26
27
28
29
30
31
31
32
32
33
33
33
33
34
35
36
37
38
39
40
41
42
43
44
FIT
1:1
100%

Артикул

Название

Примечание

Количество

1

20Y-54-28114

COVER

2

20Y-54-28161

HINGE (WELDED)

3

20Y-54-28281

SHEET

4

01010-51220

BOLT

5

01643-31232

WASHER

6

20Y-54-28341

COVER

7

20Y-54-28161

HINGE (WELDED)

8

198-54-41982

LOCK ASS'Y

9

20Y-54-28191

SHEET

10

205-54-53550

DOVE TAIL

11

01010-50612

BOLT

12

01643-30623

WASHER

13

01010-51235

BOLT

14

01643-31232

WASHER

15

20Y-54-28290

PLATE

16

20Y-54-29114

FRAME

17

20Y-54-29224

FRAME

18

01010-51230

BOLT

19

01643-31232

WASHER

20

20Y-54-28170

BRACKET

21

01010-51230

BOLT

22

01643-31232

WASHER

23

205-54-51970

DOVE TAIL

24

01010-50616

BOLT

25

01643-30623

WASHER

26

20Y-54-28182

PLATE

|26

20Y-54-28181

PLATE

27

01010-51230

BOLT

28

01643-31232

WASHER

29

20Y-54-29232

BAR

30

20Y-54-29232

BAR

31

20Y-54-29241

SEAL

32

20Y-54-29251

SEAL

33

20Y-54-29261

SEAL

34

20Y-54-27341

BRACKET

35

01010-51230

BOLT

36

01643-31232

WASHER

37

20Y-54-12920

CLAMP

38

01010-51025

BOLT

39

01643-31032

WASHER

40

20Y-54-11611

STOPPER

41

01580-11008

NUT

42

20Y-54-29133

FRAME

43

20Y-54-29271

SHEET

44

20Y-54-29143

FRAME

Выбрано товаров: 45