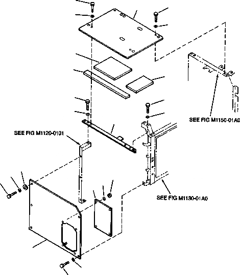
Запчасти Komatsu PC220LC-6LC FIG NO. M-A ПЕРЕГОРОДКА. - ОБОГРЕВАТЕЛЬ. ЧАСТИ КОРПУСА

Схема запчастей Komatsu PC220LC-6LC - FIG NO. M-A ПЕРЕГОРОДКА. - ОБОГРЕВАТЕЛЬ. ЧАСТИ КОРПУСА
6
1
6
7
7
2
4
3
12
12
13
13
11
16
15
9
14
10
8
5
15
14
FIT
1:1
100%

Артикул

Название

Примечание

Количество

|$0

20Y-54-K8760

COVER ASSEMBLY

1

20Y-54-K8630

COVER

2

20Y-54-32480

SHEET

3

20Y-54-32490

SHEET

4

20Y-54-32510

SHEET

5

20Y-54-29810

COVER

6

01010-51230

BOLT

7

175-54-34170

WASHER

8

20Y-54-29820

COVER

9

01540-20840

NUT

10

01642-20810

WASHER

11

20Y-54-A8610

FRAME

12

01010-51230

BOLT

13

01643-31232

WASHER

14

01010-51230

BOLT

15

01643-31232

WASHER

16

20Y-54-12550

COLLAR

Выбрано товаров: 17