Запчасти Komatsu PC220LC-6LE FIG NO. M-A ПРАВ. ДВЕРЬ КАБИНА ЧАСТИ КОРПУСА

Схема запчастей Komatsu PC220LC-6LE - FIG NO. M-A ПРАВ. ДВЕРЬ КАБИНА ЧАСТИ КОРПУСА
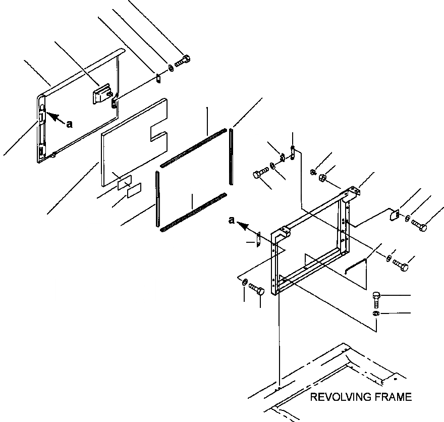
5
6
4
3
1
22
21
11
14
23
2
24
10
17
16
21
19
15
18
28
29
27
22
20
9
13
12
7
26
8
25
FIT
1:1
100%

Артикул

Название

Примечание

Количество

|$0

20Y-54-25402

DOOR ASSEMBLY, R.H. - S/N A83001-A85000

1

20Y-54-25921

COVER - S/N A83001-A85000

2

203-54-62180

HINGE - S/N A83001-A85000

|$3

20Y-54-25403

DOOR ASSEMBLY, R.H. - S/N A85001 AND UP

1

20Y-54-25922

COVER - S/N A85001 AND UP

2

207-54-61870

HINGE - S/N A85001 AND UP

3

198-54-41982

LOCK ASSEMBLY - S/N A83001 AND UP

4

205-54-53550

DOVE TAIL

5

01010-80612

BOLT

6

01643-30623

WASHER

7

01010-81230

BOLT

8

01643-31232

WASHER

9

20Y-54-28291

PLATE - S/N A83001-A85000

10

20Y-54-25411

FRAME

11

20Y-54-28170

BRACKET

12

01010-81230

BOLT

13

01643-31232

WASHER

14

205-54-51970

DOVE TAIL

15

01010-80616

BOLT

16

01643-30623

WASHER

17

20Y-54-28182

PLATE

18

01010-81230

BOLT

19

01643-31232

WASHER

20

20Y-54-29232

BAR

21

20Y-54-29251

SEAL

22

20Y-54-29261

SEAL

23

20Y-54-11611

STOPPER

24

01580-11008

NUT

25

01010-81235

BOLT - S/N A83001-A85000

25

01010-81230

BOLT - S/N A85001 AND UP

26

01643-31232

WASHER

27

20Y-54-28361

SHEET

28

20Y-00-A1910

ADHESIVE TAPE

Выбрано товаров: 33