Запчасти Komatsu PC220LC-6Z ЛЕВ. ДВЕРЬ (ДВЕРЬ) (КАБИНА)(№7-8) ЧАСТИ КОРПУСА

Схема запчастей Komatsu PC220LC-6Z - ЛЕВ. ДВЕРЬ (ДВЕРЬ) (КАБИНА)(№7-8) ЧАСТИ КОРПУСА
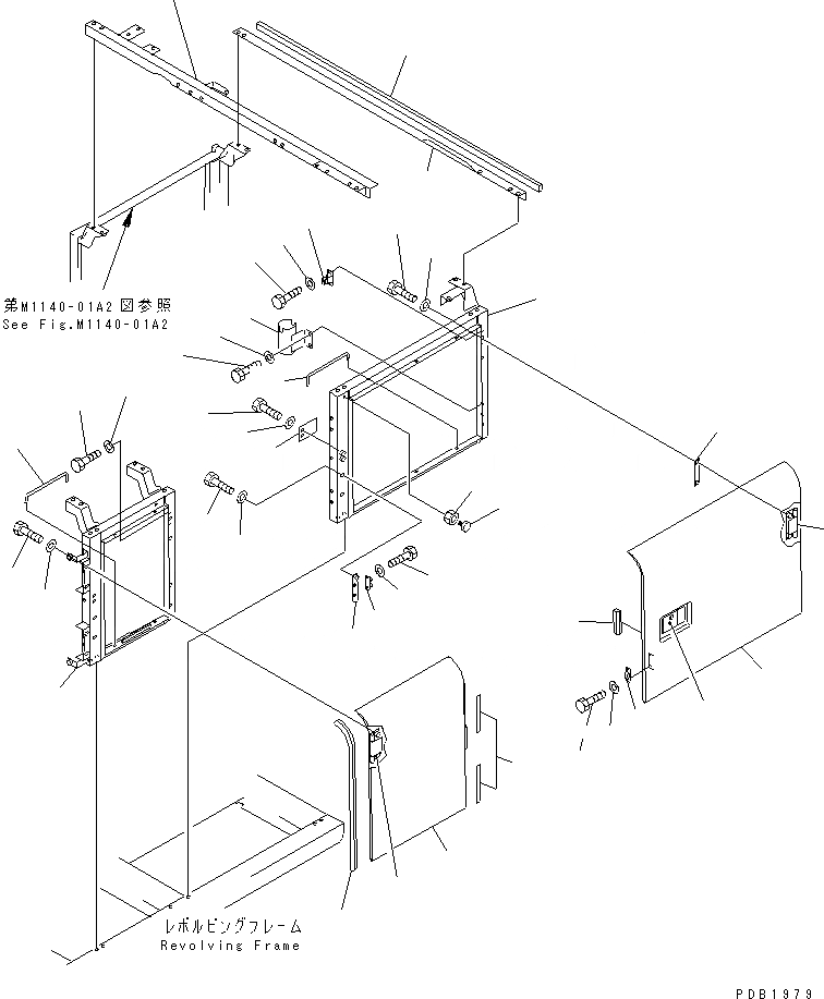
1
1
2
3
4
5
6
7
8
9
10
11
12
13
14
15
16
17
18
19
20
21
22
23
24
25
26
27
28
29
30
31
32
33
34
35
36
37
38
39
40
41
42
FIT
1:1
100%

Артикул

Название

Примечание

Количество

1

20Y-54-28114

COVER

1

20Y-54-28113

COVER

2

20Y-54-28161

HINGE

3

20Y-54-28270

SEAL

4

20Y-54-28281

SHEET

5

01010-51220

BOLT

6

01643-31232

WASHER

7

20Y-54-28341

COVER

8

20Y-54-28161

HINGE

9

198-54-41982

LOCK ASS'Y

10

20Y-54-28191

SHEET

11

205-54-53550

DOVE TAIL

12

01010-50612

BOLT

13

01643-30623

WASHER

14

01010-51235

BOLT

15

01643-31232

WASHER

16

20Y-54-28290

PLATE

17

20Y-54-29114

FRAME

18

20Y-54-29224

FRAME

19

01010-51230

BOLT

20

01643-31232

WASHER

21

20Y-54-28170

BRACKET

22

01010-51230

BOLT

23

01643-31232

WASHER

24

205-54-51970

DOVE TAIL

25

01010-50616

BOLT

26

01643-30623

WASHER

27

20Y-54-28182

PLATE

27

20Y-54-28181

PLATE

28

01010-51230

BOLT

29

01643-31232

WASHER

30

20Y-54-29232

BAR

31

20Y-54-29232

BAR

32

20Y-54-27341

BRACKET

33

01010-51230

BOLT

34

01643-31232

WASHER

35

20Y-54-12920

CLAMP

36

01010-51025

BOLT

37

01643-31032

WASHER

38

20Y-54-11611

STOPPER

39

01580-11008

NUT

40

20Y-54-29133

FRAME

41

20Y-54-29271

SHEET

42

20Y-54-29143

FRAME

Выбрано товаров: 44