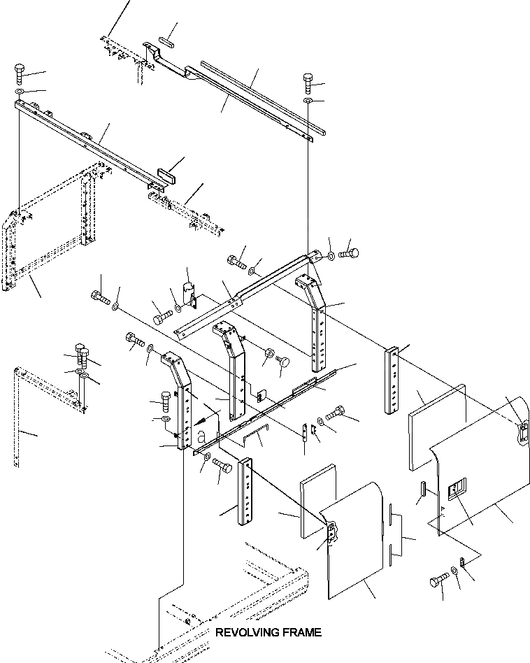
Запчасти Komatsu PC220LL-7L FIG. M-A ЛЕВ. ДВЕРЬ - КАБИНА ЧАСТИ КОРПУСА

Схема запчастей Komatsu PC220LL-7L - FIG. M-A ЛЕВ. ДВЕРЬ - КАБИНА ЧАСТИ КОРПУСА
57
45
44
48
50
49
51
42
43
41
56
20
21
11
12
31
29
19
30
33
32
13
54
58
52
23
16
59
53
24
36
37
60
35
6
34
15
46
28
47
26
27
55
14
25
34
22
18
17
38
7
58
4
5
3
2
8
10
1
9
FIT
1:1
100%

Артикул

Название

Примечание

Количество

1

20Y-54-A3710

COVER

2

203-54-62180

HINGE

3

20Y-54-63390

SHEET

4

20Y-54-A3720

COVER

5

198-54-41982

LOCK ASSEMBLY

6

203-54-62180

HINGE

7

207-54-A3930

SHEET

8

205-54-53550

DOVE TAIL

9

01010-80616

BOLT

10

01643-30623

WASHER

11

01010-81245

BOLT

12

01643-31232

WASHER

13

20Y-54-A3730

FRAME

14

20Y-54-A3750

FRAME

15

20Y-54-A3740

FRAME

16

20Y-54-61341

PLATE

17

01010-81230

BOLT

18

01643-31232

WASHER

19

20Y-54-61361

FRAME

20

01010-81230

BOLT

21

01643-31232

WASHER

22

20Y-54-28170

BRACKET

23

01010-81230

BOLT

24

01643-31232

WASHER

25

205-54-51970

DOVE TAIL

26

01010-80616

BOLT

27

01643-30623

WASHER

28

207-54-A3910

PLATE

29

01010-81230

BOLT

30

01643-31232

WASHER

31

2OY-54-61371

BRACKET

32

01010-81230

BOLT

33

01643-31232

WASHER

34

20Y-54-29231

BAR

35

20Y-54-11611

STOPPER

36

01580-11008

NUT

37

20Y-54-61451

SHEET

38

20Y-54-61461

SHEET

|$40

20Y-54-62240

FRAME

41

206-54-71480

SHEET

42

20Y-54-61221

FRAME

|$43

20Y-54-62230

FRAME

43

20Y-54-61231

FRAME

44

20Y-54-63340

SHEET

45

20Y-54-63350

SHEET

46

01010-81230

BOLT

47

01643-31232

WASHER

48

01010-81230

BOLT

49

01643-31232

WASHER

50

01010-81230

BOLT

51

01643-31232

WASHER

52

01010-81230

BOLT

53

01643-31232

WASHER

58

207-54-A3920

SPACER

59

01010-81245

BOLT

60

01643-31232

WASHER

Выбрано товаров: 0