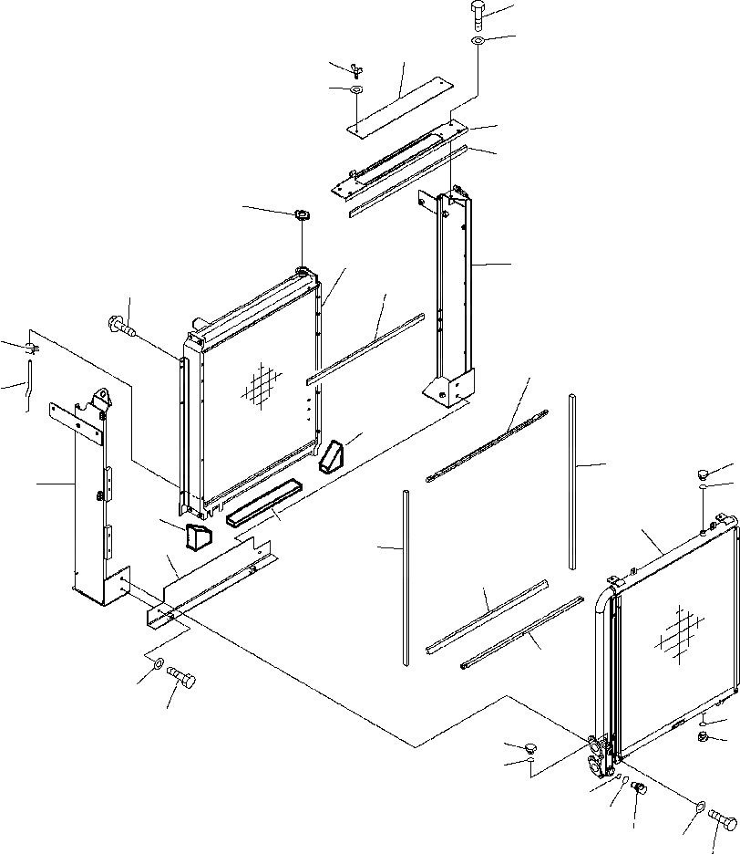
Запчасти Komatsu PC220LL-7L FIG. C-A РАДИАТОР СИСТЕМА ОХЛАЖДЕНИЯ

Схема запчастей Komatsu PC220LL-7L - FIG. C-A РАДИАТОР СИСТЕМА ОХЛАЖДЕНИЯ
13
14
15
16
17
11
12
2
1
10
8
5
4
29
3
6
32
30
33
9
6
21
7
18
30
29
31
20
33
19
32
27
28
25
26
24
23
22
FIT
1:1
100%

Артикул

Название

Примечание

Количество

1

206-03-72110

RADIATOR CORE ASSEMBLY

2

20Y-03-22110

CAP

3

203-03-41410

HOSE

4

20Y-03-11330

CLIP

5

01435-20816

BOLT

6

206-03-71231

SEAL

7

206-03-71241

SEAL

8

20Y-03-31260

SEAL

9

206-03-72141

FRAME

10

206-03-72151

FRAME

11

206-03-72210

FRAME

12

206-03-72220

SEAL

13

01010-81025

BOLT

14

01643-31032

WASHER

15

22U-03-21190

PLATE

16

01434-10616

BOLT, WING

17

01643-30623

WASHER

18

206-03-72161

BRACKET

19

01010-81025

BOLT

20

01643-31032

WASHER

21

206-03-71120

OIL COOLER ASSEMBLY

22

01010-81030

BOLT

23

01643-31032

WASHER

24

20Y-03-31480

VALVE ASSEMBLY

25

07000-12020

O-RING

26

07002-13034

O-RING

27

07040-11812

PLUG

28

07002-11823

O-RING

29

22U-03-21740

SHEET

30

206-03-72171

SEAL

31

22U-03-21760

SHEET

32

07040-11409

PLUG

33

07002-11423

O-RING

Выбрано товаров: 33