Запчасти Komatsu PC228US-1 УПРАВЛ-Е ПОДАЧ. ТОПЛИВА КОМПОНЕНТЫ ДВИГАТЕЛЯ

Схема запчастей Komatsu PC228US-1 - УПРАВЛ-Е ПОДАЧ. ТОПЛИВА КОМПОНЕНТЫ ДВИГАТЕЛЯ
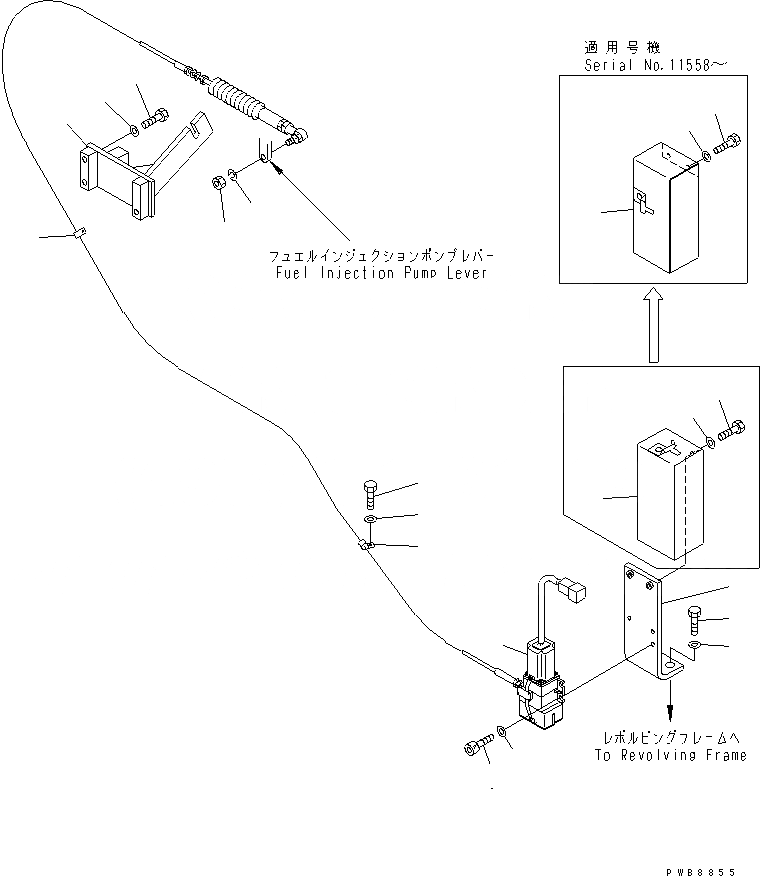
1
2
3
4
5
6
7
8
9
10
11
12
12
13
14
15
15
16
16
17
17
FIT
1:1
100%

Артикул

Название

Примечание

Количество

1

22U-43-11111

BRACKET

2

01010-80845

BOLT

3

01643-30823

WASHER

4

22U-06-11821

BRACKET

5

01010-81230

BOLT

6

01643-31232

WASHER

7

22U-06-11113

MOTOR ASS'Y

8

01252-70620

BOLT

9

01643-30623

WASHER

10

01580-10605

NUT

11

01602-20619

WASHER

12

08036-00614

CLIP

13

01010-81020

BOLT

14

01643-31032

WASHER

15

22U-06-11574

COVER

|15

22U-06-11573

COVER

16

01010-80620

BOLT

17

01643-30623

WASHER

Выбрано товаров: 18