Качественные детали и логистика
Оригинальные и аналоговые запчасти с доставкой по России, Казахстану и Беларуси
©2022 PartSell ООО "Система" ИНН 2463123282 ОГРН 1212400004838
Центральный офис: г. Красноярск, Академика Киренского, д.87, пом.4
Телефон: 8 (800) 777-65-74 Email: zakaz@partsell.ru
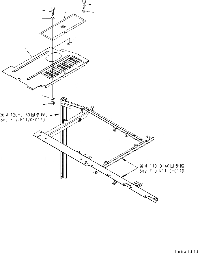
ВЕРХН. ЧАСТЬ (YELНИЗ.) (С DUST ЗАЩИТА NET)(№-)
№
Артикул
Название
Примечание
Количество
1
22U-54-23642YN
COVER
2
209-956-6140
SEAL
3
01010-81220
BOLT
4
01643-31232
WASHER
5
22U-54-21350
NET
6
01010-80616
7
01643-30623
8
9
01580-10605
NUT
Выбрано товаров: 0