Запчасти Komatsu PC228US-3-YA 2-СЕКЦИОНН. СТРЕЛА (ВТОР. СТРЕЛА) (ЦИЛИНДР КОВША И СИСТЕМА СМАЗКИ) (YELНИЗ.)(№-) РАБОЧЕЕ ОБОРУДОВАНИЕ

Схема запчастей Komatsu PC228US-3-YA - 2-СЕКЦИОНН. СТРЕЛА (ВТОР. СТРЕЛА) (ЦИЛИНДР КОВША И СИСТЕМА СМАЗКИ) (YELНИЗ.)(№-) РАБОЧЕЕ ОБОРУДОВАНИЕ
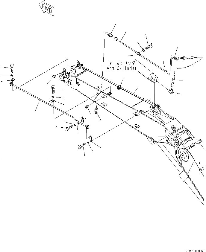
1
1
2
3
3
4
5
6
6
7
8
9
10
11
12
13
14
15
16
17
17
17
18
19
20
21
22
22
FIT
1:1
100%

Артикул

Название

Примечание

Количество

1

20Y-62-24930

TUBE

2

20Y-62-24920

PLATE

3

20Y-62-13650

CLAMP

4

01010-81230

BOLT

5

20Y-62-13450

PLATE

6

20Y-62-13220

CLAMP

7

20Y-62-13450

PLATE

8

01010-81230

BOLT

9

20Y-62-13650

CLAMP

10

20Y-62-13450

PLATE

11

01010-81230

BOLT

12

01010-81230

BOLT

13

20Y-62-13450

PLATE

14

20Y-966-2582

TUBE

15

07214-50813

CONNECTOR

16

07020-00000

FITTING

17

08036-00814

CLIP

18

01010-81016

BOLT

19

01643-31032

WASHER

20

20Y-70-11520

HOSE¤ 440MM

21

205-70-51390

NIPPLE

22

07049-01215

PLUG

Выбрано товаров: 22