Качественные детали и логистика
Оригинальные и аналоговые запчасти с доставкой по России, Казахстану и Беларуси
©2022 PartSell ООО "Система" ИНН 2463123282 ОГРН 1212400004838
Центральный офис: г. Красноярск, Академика Киренского, д.87, пом.4
Телефон: 8 (800) 777-65-74 Email: zakaz@partsell.ru
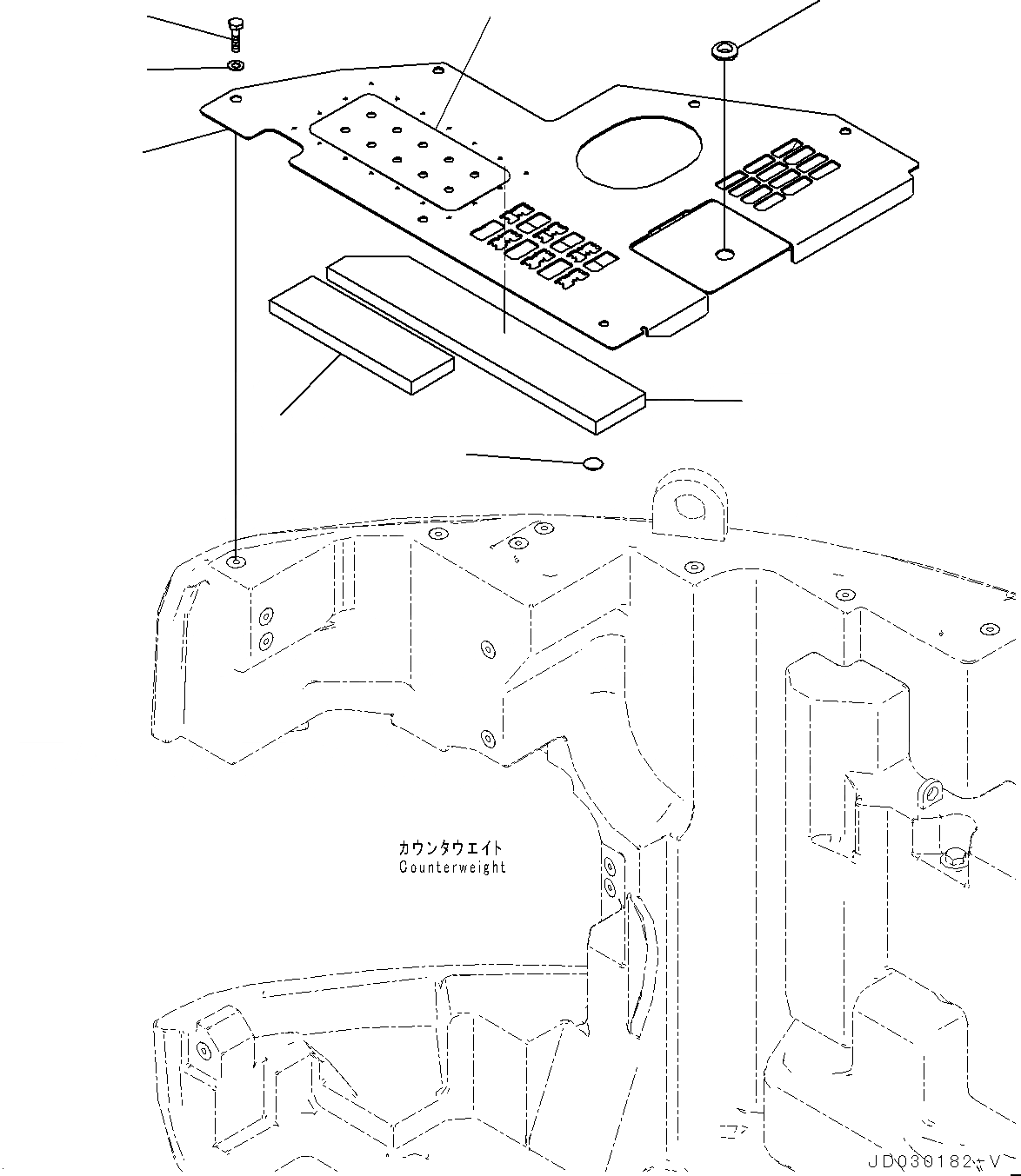
ВЕРХН. ЧАСТЬ (№-)
№
Артикул
Название
Примечание
Количество
|$0
22U-54-33851
Cover Assembly
|$1
22U-54-33850
1
Cover
2
22U-54-33930
Sheet
3
22U-54-33970
4
124-A62-1920
Cap
5
08037-02512
Grommet
6
207-00-76250
Plate
7
01010-81230
Bolt
8
01643-31232
Washer
Выбрано товаров: 0