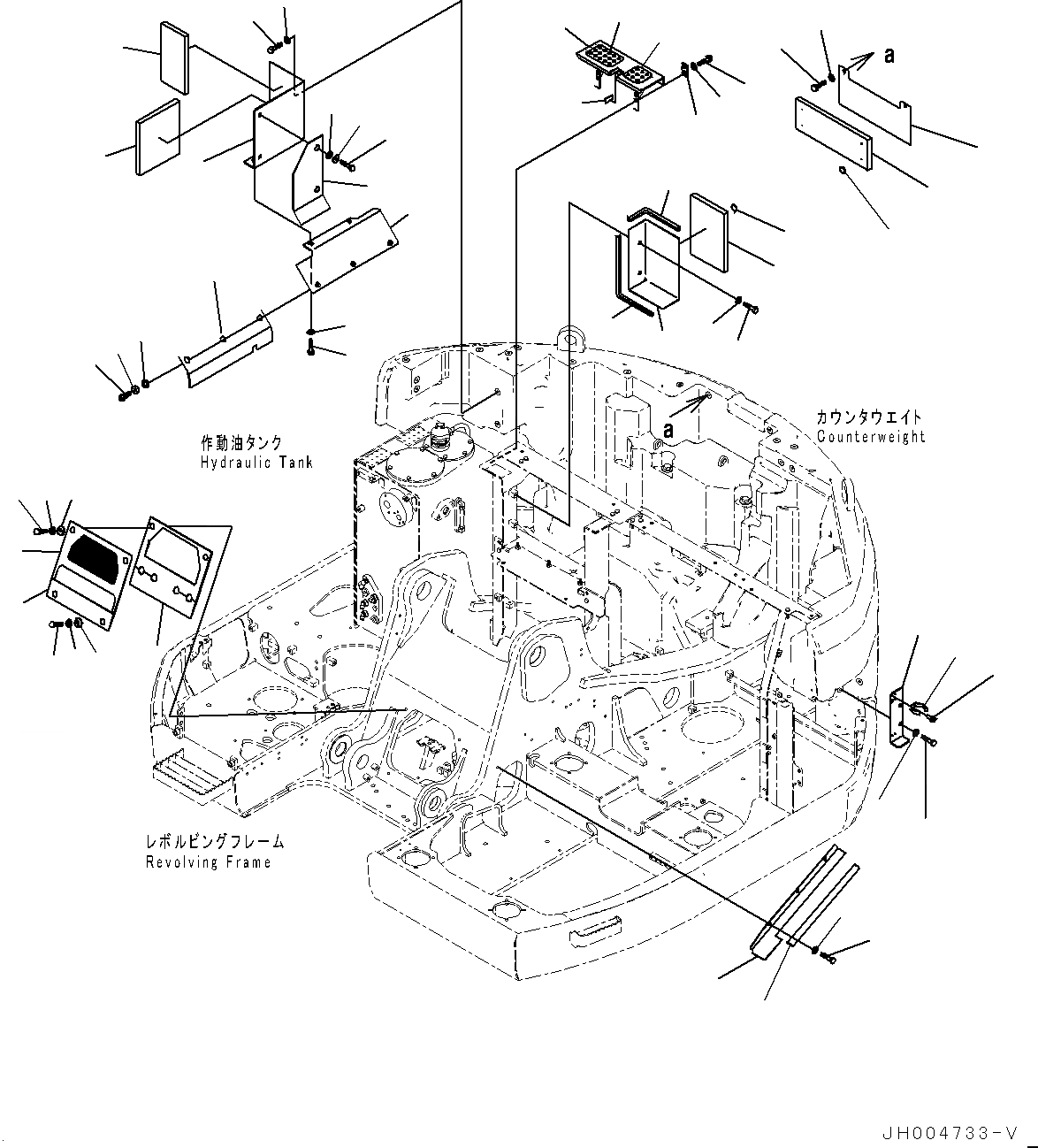
Запчасти Komatsu PC228USLC-8 ПЕРЕГОРОДКА. COVER, КРЫШКА(/) (№-) ПЕРЕГОРОДКА. COVER, БЕЗ ANTI-DROP КЛАПАН

Схема запчастей Komatsu PC228USLC-8 - ПЕРЕГОРОДКА. COVER, КРЫШКА(/) (№-) ПЕРЕГОРОДКА. COVER, БЕЗ ANTI-DROP КЛАПАН
1
2
5
3
6
9
7
10
11
12
21
23
24
26
14
15
16
17
18
19
44
45
46
47
49
50
51
52
28
33
34
29
30
31
32
35
37
38
39
40
41
42
36
48
53
4
8
13
43
20
27
25
22
FIT
1:1
100%

Артикул

Название

Примечание

Количество

|$0

22U-54-23330

Cover

1

Plate

2

22U-54-22691

Sheet

3

01010-81230

Bolt

4

01643-31232

Washer

5

205-54-76411

Collar

6

22U-54-22680

Plate

7

01010-81230

Bolt

8

01643-31232

Washer

9

205-54-76411

Collar

9

22U-54-34810

Cover

10

Cover

11

22U-54-11960

Seal

12

01010-81230

Bolt

13

01643-31232

Washer

13

22U-54-33670

Cover

14

Cover

15

22U-54-33690

Sheet

16

124-A62-1920

Cap

17

22U-54-32680

Seal

18

22U-54-32690

Seal

19

01010-81230

Bolt

20

01643-31232

Washer

|$23

22U-54-35640

Bracket Assembly

21

Bracket

22

22U-54-35620

Sheet

23

21M-00-21280

Plate

24

21M-00-21290

Plate

25

22U-54-32660

Plate

26

01010-81230

Bolt

27

01643-31232

Washer

|$31

22U-54-32911

Cover Assembly

28

Cover

29

22U-54-32930

Sheet

30

01643-51232

Washer

31

124-54-26540

Washer

32

01010-81230

Bolt

33

22U-54-32941

Sheet

34

22U-54-33950

Sheet

35

01010-81230

Bolt

36

01643-31232

Washer

36

22U-54-32961

Cover Assembly

37

Cover

38

22U-54-32990

Sheet

39

01643-51232

Washer

40

124-54-26540

Washer

41

01010-81220

Bolt

42

01010-81230

Bolt

43

01643-31232

Washer

43

22U-54-33911

Bracket Assembly

44

Bracket

45

203-54-63230

Clamp

46

01023-20614

Screw

47

01010-81230

Bolt

48

01643-31232

Washer

48

22U-54-34770

Cover Assembly

49

Cover

50

22U-54-34790

Sheet

51

124-A62-1920

Cap

52

01010-81230

Bolt

53

01643-31232

Washer

Выбрано товаров: 61