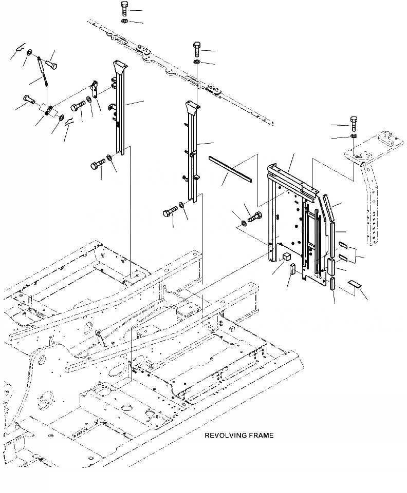
Запчасти Komatsu PC240LC-10 M- КАБИНА РАМА ЧАСТИ КОРПУСА

Схема запчастей Komatsu PC240LC-10 - M- КАБИНА РАМА ЧАСТИ КОРПУСА
1
21
22
21
22
7
9
8
6
7
2
3
4
5
8
9
21
22
21
22
21
22
10
15
11
21
22
17
16
12
20
18
19
14
13
FIT
1:1
100%

Артикул

Название

Примечание

Количество

1

2A5-54-11631

FRAME

2

2A5-54-12951

BRACKET

3

01010-81230

BOLT

4

01643-31232

WASHER

5

2A5-54-11960

YOKE

6

2A5-54-11951

DAMPER

7

04205-30825

PIN

8

01640-20816

WASHER

9

04052-20833

PIN

10

2A5-54-11641

FRAME

11

2A5-54-11573

FRAME

12

205-03-71440

SHEET

13

2A5-54-11591

SHEET

14

2A5-54-11611

SHEET

15

2A5-54-11621

SHEET

16

2A5-54-11651

SHEET

17

2A5-54-11661

SHEET

18

2A5-54-13551

SHEET

19

2A5-54-14451

SHEET

20

2A5-54-14460

SHEET

21

01010-81230

BOLT

22

01643-31232

WASHER

Выбрано товаров: 22