Качественные детали и логистика
Оригинальные и аналоговые запчасти с доставкой по России, Казахстану и Беларуси
©2022 PartSell ООО "Система" ИНН 2463123282 ОГРН 1212400004838
Центральный офис: г. Красноярск, Академика Киренского, д.87, пом.4
Телефон: 8 (800) 777-65-74 Email: zakaz@partsell.ru
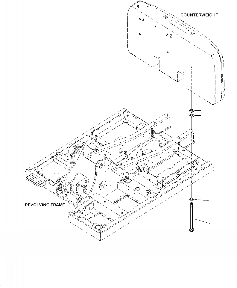
M- ПРОТИВОВЕС КРЕПЛЕНИЕ
№
Артикул
Название
Примечание
Количество
1
562-22-31960
BOLT
2
207-46-52130
WASHER
3
206-46-31450
SHIM, T = 1.5 MM
Выбрано товаров: 0