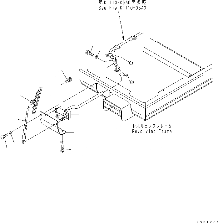
Запчасти Komatsu PC240LC-7K НИЖН. ДВОРНИКИ КАБИНА ОПЕРАТОРА И СИСТЕМА УПРАВЛЕНИЯ

Схема запчастей Komatsu PC240LC-7K - НИЖН. ДВОРНИКИ КАБИНА ОПЕРАТОРА И СИСТЕМА УПРАВЛЕНИЯ
1
2
2
3
3
4
5
6
7
8
9
10
FIT
1:1
100%

Артикул

Название

Примечание

Количество

1

207-06-71320

PLATE

2

01245-01225

SCREW

3

01643-71232

WASHER

4

198-911-3380

WIPER MOTOR ASS'Y

5

01023-60516

SCREW

6

20E-54-K2290

BLADE,WIPER

7

20E-54-K2310

ARM,WIPER

8

04434-51012

CLIP

9

01010-81220

BOLT

10

01643-31232

WASHER

Выбрано товаров: 10