Запчасти Komatsu PC240NLC-6K ЛЕВ. ДВЕРЬ (ДВЕРЬ) (КАБИНА)(№K-) ЧАСТИ КОРПУСА

Схема запчастей Komatsu PC240NLC-6K - ЛЕВ. ДВЕРЬ (ДВЕРЬ) (КАБИНА)(№K-) ЧАСТИ КОРПУСА
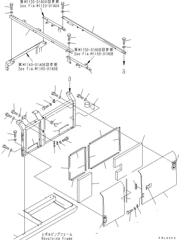
1
2
3
4
5
6
7
8
9
10
11
12
13
14
15
16
17
18
19
20
21
22
23
24
25
26
27
28
29
30
31
32
33
34
35
36
37
38
38
39
39
40
40
41
41
42
42
43
43
44
44
44
44
45
46
47
FIT
1:1
100%

Артикул

Название

Примечание

Количество

|1

20Y-54-K6610

DOOR ASS'Y

1

20Y-54-K7690

COVER

2

20Y-54-K9840

HINGE (WELDED)

3

01010-81235

BOLT

4

01643-31232

WASHER

5

20Y-54-K7680

COVER

6

20Y-54-K9840

HINGE (WELDED)

7

198-54-41982

LOCK ASS'Y

8

205-54-53550

DOVE TAIL

9

01010-80612

BOLT

10

01643-30623

WASHER

11

01010-81225

BOLT

12

01643-31232

WASHER

13

01010-51240

BOLT

14

01643-31232

WASHER

15

20Y-54-K6630

FRAME

16

20Y-54-28170

BRACKET

17

01010-81230

BOLT

18

01643-31232

WASHER

19

205-54-51970

DOVE TAIL

20

01010-80616

BOLT

21

01643-30623

WASHER

22

20Y-54-K7421

PLATE

23

01010-81230

BOLT

24

01643-31232

WASHER

25

20Y-54-29232

BAR

26

20Y-54-29232

BAR

27

20Y-54-K9281

BRACKET

28

20Y-54-12920

CLAMP

29

01010-81016

BOLT

30

01643-31032

WASHER

31

20Y-54-11611

STOPPER

32

01580-11008

NUT

33

20Y-54-K8932

FRAME

34

20Y-54-25361

FRAME

35

01010-81230

BOLT

36

01643-31232

WASHER

37

20Y-54-25210

SHEET

38

01010-81230

BOLT

39

01643-31232

WASHER

40

01010-81230

BOLT

41

01643-31232

WASHER

42

20Y-54-K7560

SEAL

43

20Y-54-29251

SEAL

44

20Y-54-K7430

SEAL

45

20Y-54-KA150

SHEET

46

20Y-54-K7541

SHEET

47

20Y-54-K7992

SHEET

Выбрано товаров: 48