Запчасти Komatsu PC240NLC-7K ОСНОВНАЯ РАМА (РАМА И КОРПУС) ОСНОВНАЯ РАМА И ЕЕ ЧАСТИ

Схема запчастей Komatsu PC240NLC-7K - ОСНОВНАЯ РАМА (РАМА И КОРПУС) ОСНОВНАЯ РАМА И ЕЕ ЧАСТИ
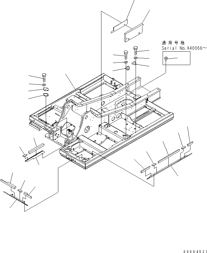
1
2
3
4
5
5A
6
7
8
8
9
9
10
11
12
13
14
15
15
16
17
18
19
20
21
22
23
FIT
1:1
100%

Артикул

Название

Примечание

Количество

1

206-46-71202

FRAME

|1

206-46-71201

FRAME

|1

206-46-71200

FRAME

2

205-30-71181

COVER

3

205-30-71191

GASKET

4

01010-81230

BOLT

5

07005-01212

GASKET

5A

20Y-46-41280

PLUG

6

20Y-54-61670

BRACKET

7

20Y-54-61680

BRACKET

8

01010-81230

BOLT

9

01643-31232

WASHER

|10

20Y-46-42411

COVER

10

COVER

11

20Y-46-42231

SEAL

12

20Y-46-42460

SHEET

|13

20Y-46-42422

COVER

13

COVER

14

20Y-46-42251

SEAL

15

20Y-46-42460

SHEET

16

20Y-46-42470

SEAL

17

20Y-46-42480

SEAL

|18

20Y-46-42431

COVER

18

20Y-46-42290

COVER

19

20Y-46-42241

SEAL

20

20Y-46-42460

SHEET

21

20Y-46-42490

SEAL

|22

20Y-46-42440

COVER

22

20Y-46-42381

COVER

23

20Y-46-42260

SHEET

Выбрано товаров: 30