Запчасти Komatsu PC240NLC-8K ОСНОВН. КОНСТРУКЦИЯ (OPERATORґS КАБИНА) (ОСНОВ.) K OPERATORґS ОБСТАНОВКА И СИСТЕМА УПРАВЛЕНИЯ

Схема запчастей Komatsu PC240NLC-8K - ОСНОВН. КОНСТРУКЦИЯ (OPERATORґS КАБИНА) (ОСНОВ.) K OPERATORґS ОБСТАНОВКА И СИСТЕМА УПРАВЛЕНИЯ
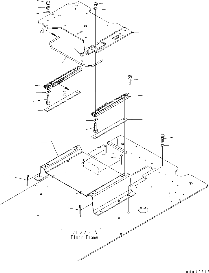
1
2
2
3
4
4
5
6
7
8
9
10
11
11
12
12
13
14
14
15
15
16
17
18
18
FIT
1:1
100%

Артикул

Название

Примечание

Количество

1

20Y-43-41920

FRAME

2

208-43-71520

SEAL

3

208-43-71530

SEAL

4

208-43-71590

SEAL

5

01010-81230

BOLT

6

01643-31232

WASHER

7

208-43-K1040

ADJUSTER

8

01252-80825

BOLT

9

208-43-K1030

ADJUSTER

10

01252-80825

BOLT

11

01252-70845

BOLT

12

20Y-43-41960

PLATE

13

20Y-43-41911

FRAME

14

195-43-43370

NUT

15

01643-70823

WASHER

16

22B-54-16950

CAP

17

20Y-43-41930

PIPE

18

20Y-43-41940

PLATE

Выбрано товаров: 18