Качественные детали и логистика
Оригинальные и аналоговые запчасти с доставкой по России, Казахстану и Беларуси
©2022 PartSell ООО "Система" ИНН 2463123282 ОГРН 1212400004838
Центральный офис: г. Красноярск, Академика Киренского, д.87, пом.4
Телефон: 8 (800) 777-65-74 Email: zakaz@partsell.ru
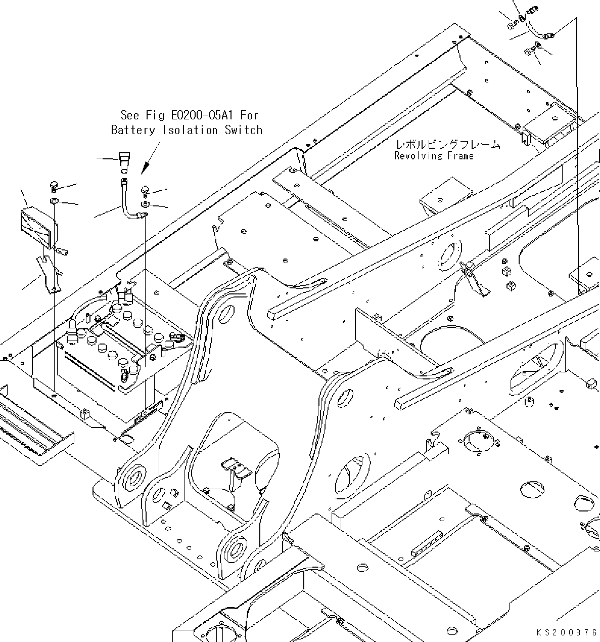
ЭЛЕКТРОПРОВОДКА (ЛАМПА РАБОЧ. ОСВЕЩЕНИЯ И EARTH КАБЕЛЬ)
№
Артикул
Название
Примечание
Количество
1
08028-43030
CABLE
2
08038-22511
CAP
3
01010-81025
BOLT
4
01643-31032
WASHER
5
20Y-06-K2760
WORK LAMP ASSEMBLY
6
20Y-06-41690
BRACKET
7
01010-81230
8
01643-31232
9
10
01010-81020
11
Выбрано товаров: 0