Запчасти Komatsu PC250-6 ПЕРЕГОРОДКА. (КАБИНА) ЧАСТИ КОРПУСА

Схема запчастей Komatsu PC250-6 - ПЕРЕГОРОДКА. (КАБИНА) ЧАСТИ КОРПУСА
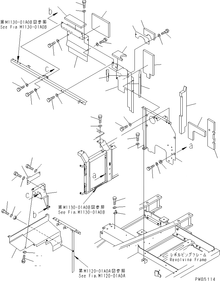
1
2
3
4
5
6
7
8
9
10
11
12
13
14
15
16
17
17
18
18
19
20
21
22
23
24
25
25
26
26
27
27
28
28
29
30
31
32
33
34
34
34
35
35
35
36
37
38
39
40
41
42
FIT
1:1
100%

Артикул

Название

Примечание

Количество

1

20Y-54-26211

COVER

2

20Y-54-26233

COVER

3

20Y-54-25393

COVER

3

20Y-54-25392

COVER

4

20Y-54-27591

SHEET

4

20Y-54-27590

SHEET

5

20Y-54-29992

SHEET

5

20Y-54-29991

SHEET

6

20Y-54-27722

SHEET

7

20Y-54-25512

COVER

7

20Y-54-25511

COVER

8

20Y-54-25231

SHEET

8

20Y-54-25230

SHEET

9

20Y-54-25241

SHEET

9

20Y-54-25240

SHEET

10

20Y-54-25251

SHEET

10

20Y-54-25250

SHEET

11

20Y-54-25261

SHEET

11

20Y-54-25260

SHEET

12

01010-81230

BOLT

13

175-54-34170

WASHER

14

20Y-54-12550

COLLAR

15

01010-81230

BOLT

16

01643-31232

WASHER

17

01010-81230

BOLT

18

01643-31232

WASHER

19

01010-81230

BOLT

20

01643-31232

WASHER

21

20Y-54-12550

COLLAR

22

01010-81230

BOLT

23

01643-31232

WASHER

24

20Y-54-26221

COVER

25

01010-81230

BOLT

26

01643-31232

WASHER

27

01010-81230

BOLT

28

01643-31232

WASHER

29

20Y-54-25271

COVER

29

20Y-54-25270

COVER

30

20Y-54-25571

SHEET

30

20Y-54-25570

SHEET

31

20Y-54-25581

SHEET

31

20Y-54-25580

SHEET

32

01010-81230

BOLT

33

01643-31232

WASHER

34

01010-81230

BOLT

35

175-54-34170

WASHER

36

20Y-54-27683

COVER

36

20Y-54-27682

COVER

37

20Y-54-27571

SHEET

37

20Y-54-27570

SHEET

38

01010-81230

BOLT

39

01643-31232

WASHER

40

20Y-54-12320

CATCH

41

01010-81230

BOLT

42

01643-31232

WASHER

Выбрано товаров: 55