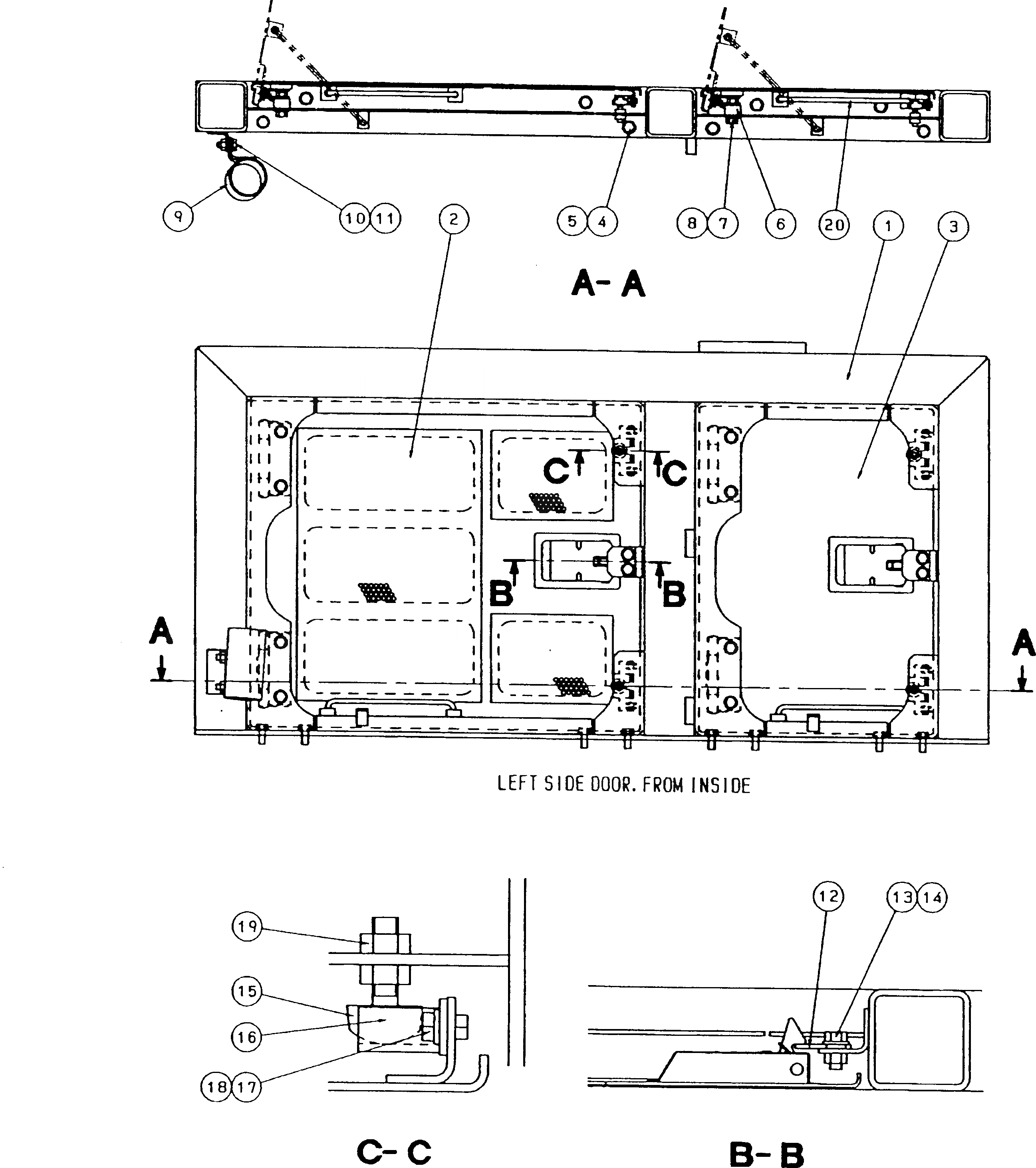
Запчасти Komatsu PC250HD-6Z ЛЕВ. ДВЕРЬ (ДВЕРЬ) (КАБИНА) ЧАСТИ КОРПУСА

Схема запчастей Komatsu PC250HD-6Z - ЛЕВ. ДВЕРЬ (ДВЕРЬ) (КАБИНА) ЧАСТИ КОРПУСА
FIT
1:1
100%

Артикул

Название

Примечание

Количество

1

206-54-81170

FRAME

2

206-54-81180

COVER

3

206-54-81210

COVER

4

01010-81230

BOLT

5

01643-31232

WASHER

6

206-54-81430

PLATE

7

01010-81240

BOLT

8

01643-31232

WASHER

9

206-54-81470

BRACKET

10

01010-81230

BOLT

11

01643-31232

WASHER

12

209-54-63260

BRACKET

13

01010-81225

BOLT

14

01643-31232

WASHER

15

203-54-63830

STOPPER

16

203-54-63750

BRACKET

17

01010-80616

BOLT

18

01643-30623

WASHER

19

01580-11008

NUT

20

20Y-54-29232

BAR

Выбрано товаров: 0