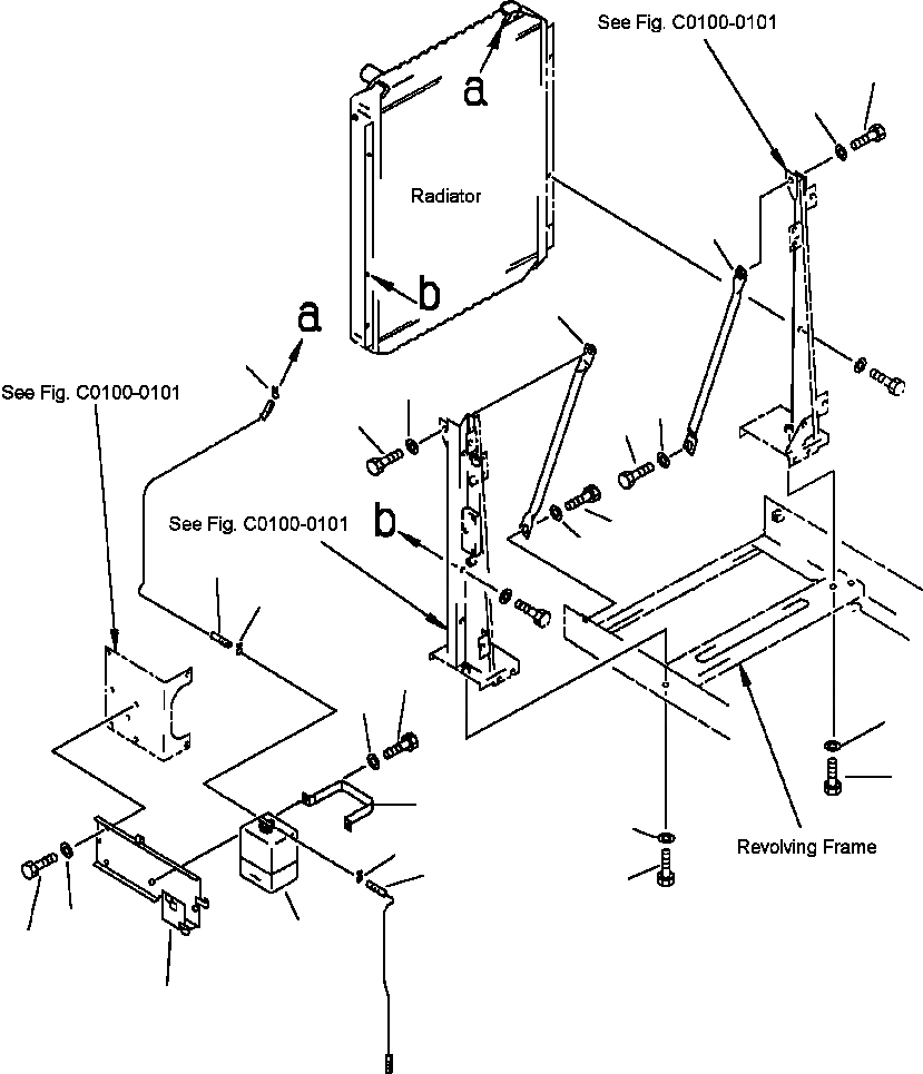
Запчасти Komatsu PC250LC-6L FIG NO. C- КРЕПЛЕНИЕ РАДИАТОРА СИСТЕМА ОХЛАЖДЕНИЯ

Схема запчастей Komatsu PC250LC-6L - FIG NO. C- КРЕПЛЕНИЕ РАДИАТОРА СИСТЕМА ОХЛАЖДЕНИЯ
14
15
12
12
9
15
16
14
13
13
16
8
9
6
7
18
17
5
18
3
2
17
11
1
10
4
FIT
1:1
100%

Артикул

Название

Примечание

Количество

1

20Y-06-15240

TANK, COOLANT OVERFLOW

|$1

205-03-71532

CAP, COOLANT OVERFLOW TANK

2

20Y-03-21450

HOSE

3

206-03-43340

CLIP

4

20Y-03-21252

BRACKET

5

203-03-56650

BRACKET

6

01010-50820

BOLT

7

01643-30823

WASHER

8

20Y-03-21460

HOSE

9

206-03-43340

CLIP

10

01010-51020

BOLT

11

01643-31032

WASHER

12

20Y-03-21171

STAY

13

01010-51635

BOLT

14

01010-51635

BOLT

15

01643-31645

WASHER

16

21T-54-16150

WASHER

17

01016-51250

BOLT

18

01643-31232

WASHER

Выбрано товаров: 19