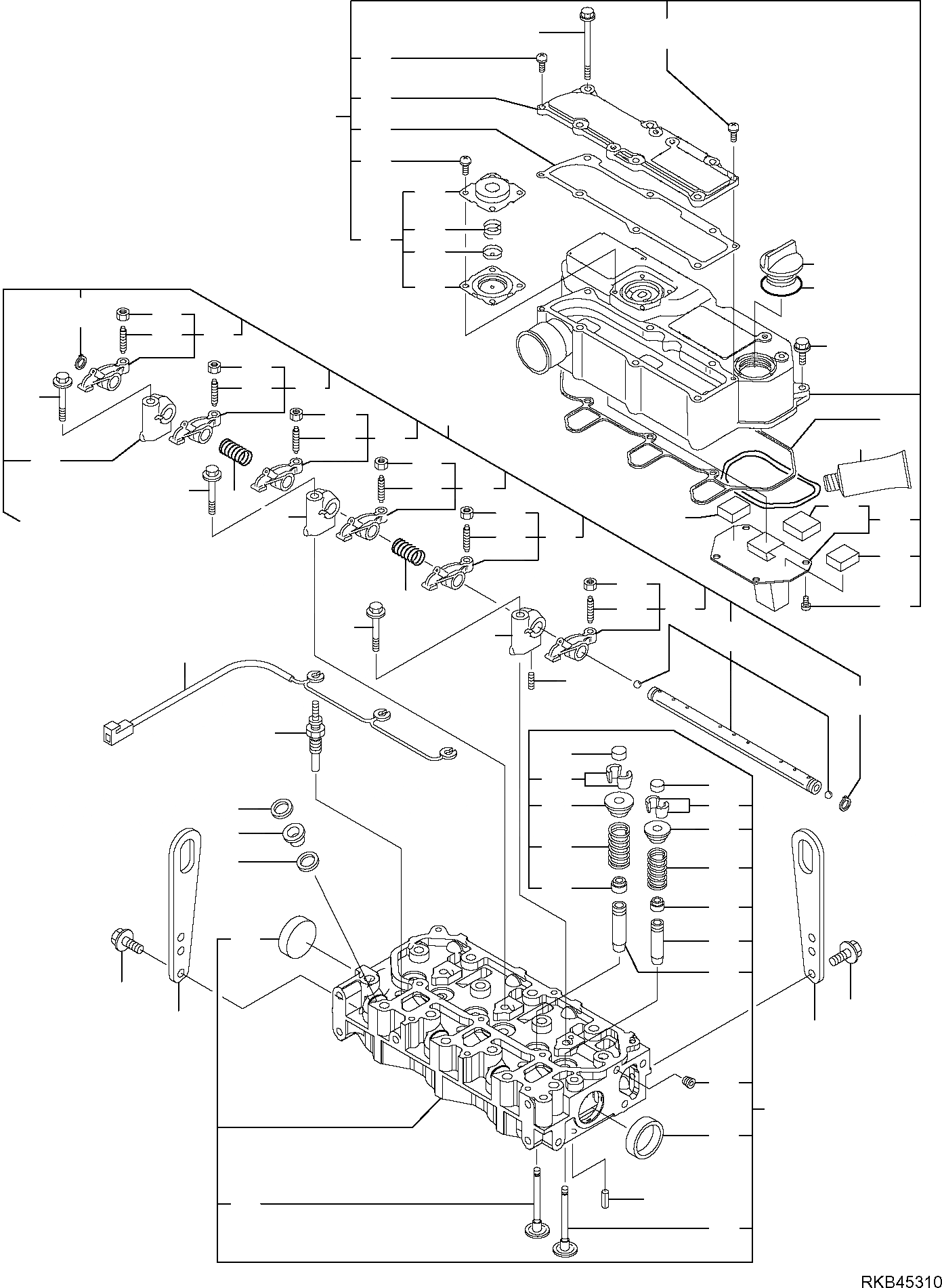
Запчасти Komatsu PC26MR-3 ГОЛОВКА ЦИЛИНДРОВ ДВИГАТЕЛЬ

Схема запчастей Komatsu PC26MR-3 - ГОЛОВКА ЦИЛИНДРОВ ДВИГАТЕЛЬ
58
55
55
51
39
52
54
45
47
43
44
38
46
56
35
34
31
32
57
34
31
32
37
25
34
50
32
31
61
29
34
37
32
31
30
41
34
29
42
40
32
31
42
34
30
53
32
31
37
26
29
60
36
35
59
5
21
5
20
21
4
20
3
19
4
19
23
22
15
13
13
2
2
1
1
16
6
15
24
18
17
FIT
1:1
100%

Артикул

Название

Примечание

Количество

\0

22K-01-21101

TURBO ENGINE, ASSEMBLY

1

YM129900-07900

LIFTER

2

YM26106-080162

BOLT, FLANGED

3

YM129901-11450

PROTECTION

4

YM119600-11460

GASKET

5

YM105010-11490

PAD

6

YM119717-11740

HEAD ASSEMBLY, CYLINDER

13

YM119717-11800

GUIDE, VALVE

15

YM119285-11990

PLUG

16

YM23876-005000

PLUG

17

YM119717-11100

VALVE, SUCTION

18

YM119717-11110

VALVE, EXHAUST

19

YM119717-11131

SPRING, VALVE

20

YM129508-11180

RETAINER, SPRING

21

YM119717-11190

COTTER, ASSEMBLY

22

YM119717-11340

SEAL, VALVE STEM

23

YM119717-11350

SEAL, VALVE STEM

24

YM22351-060012

PIN, SPRING

25

YM119717-11200

SUPPORT, ASSEMBLY

26

YM119717-11240

ROCKER SHAFT, ASSEMBLY

29

YM119717-11260

RETAINER

30

YM119620-11280

SPRING

31

YM119717-11650

ROCKER ARM, ASSEMBLY

32

YM129150-11230

SCREW, VALVE

34

YM129150-11750

NUT

35

YM22242-000120

RING, SNAP

36

YM26979-050162

SCREW

37

YM26106-080402

BOLT, FLANGED

38

YM124160-01751

COVER, FILLER

39

YM119717-11381

COVER, HEAD, ASSY

40

YM119717-03031

PLATE

41

YM119717-03070

SPLASH-GUARD

42

YM119717-03070

SPLASH-GUARD

43

YM119802-03100

DIAPHRAGM, ASSEMBLY

44

YM119802-03110

RETAINER

45

YM119802-03121

COVER

46

YM119802-03131

DIAPHRAGM

47

YM119802-03141

SPRING

50

YM119718-11310

GASKET

51

YM119717-11320

COVER

52

YM119717-11331

GASKET

53

YM22857-500100

SCREW

54

YM22857-500100

SCREW

55

YM22857-500160

SCREW

56

YM24311-000320

O-RING

57

YM26106-060202

BOLT, FLANGED

58

YM26106-060752

BOLT

59

YM119717-77800

GLOW PLUG, ASSEMBLY

60

YM119717-77851

CONNECTOR

61

YM977770-01212

GASKET, LIQUID

Выбрано товаров: 50