Запчасти Komatsu PC270-8 ПРАВ. COVER M [ЧАСТИ КОРПУСАS И КРЫШКИ]

Схема запчастей Komatsu PC270-8 - ПРАВ. COVER M [ЧАСТИ КОРПУСАS И КРЫШКИ]
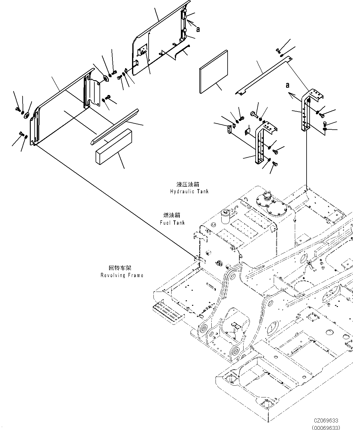
1
2
3
5
4
10
9
11
13
12
14
16
15
17
19
18
20
22
21
23
24
25
26
28
27
32
35
35
33
33
36
36
34
34
32
7
7
8
6
29
30
31
FIT
1:1
100%

Артикул

Название

Примечание

Количество

1

20Y-54-71411

FRAME

2

20Y-54-71421

FRAME

3

20Y-54-71431

PLATE

4

01010-81225

BOLT

5

01643-31232

WASHER

6

206-54-22230

COVER

7

20Y-54-63414

HINGE

8

20Y-54-77150

LOCK

9

01010-81225

BOLT

10

01643-31232

WASHER

11

20Y-54-61470

PLATE

12

01010-81225

BOLT

13

01643-31232

WASHER

14

205-54-53550

DOVE TAIL

15

01010-80612

BOLT

16

01643-30623

WASHER

17

20Y-54-28170

BRACKET

18

01010-81225

BOLT

19

01643-31232

WASHER

20

205-54-51971

DOVETAIL

21

01010-80616

BOLT

22

01643-30623

WASHER

23

20Y-54-11611

STOPPER

24

01580-11008

NUT

25

20Y-54-71440

SHEET

26

20Y-54-29232

BAR

27

01010-81230

BOLT

28

01643-31232

WASHER

|$29

20Y-54-77320

COVER

29

COVER

30

20Y-54-61391

SHEET

31

20Y-54-77330

SHEET

32

208-54-57180

COLLAR

33

01010-81230

BOLT

34

01643-31232

WASHER

35

01010-81240

BOLT

36

01643-31232

WASHER

Выбрано товаров: 37