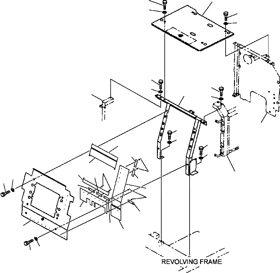
Запчасти Komatsu PC270LC-6LE FIG NO. M-A ПЕРЕГОРОДКА. - КОНДИЦ. ВОЗДУХА ЧАСТИ КОРПУСА

Схема запчастей Komatsu PC270LC-6LE - FIG NO. M-A ПЕРЕГОРОДКА. - КОНДИЦ. ВОЗДУХА ЧАСТИ КОРПУСА
2
1
3
2
3
8
8
9
18
4
9
19
8
9
15
8
9
11
16
10
17
11
10
6
20
5
11
11
14
10
13
11
11
7
12
6
5
FIT
1:1
100%

Артикул

Название

Примечание

Количество

1

206-979-A110

COVER

2

01010-81230

BOLT

3

175-54-34170

WASHER

4

206-979-A120

BRACKET

5

01010-81230

BOLT

6

01643-31232

WASHER

7

206-979-A131

COVER

8

01010-81230

BOLT

9

01643-31232

WASHER

10

426-54-13720

PLATE - RIVET

11

362-56-41740

RIVET

12

206-54-A1150

RUBBER

13

206-54-A1160

RUBBER

14

206-54-A1170

RUBBER

15

206-54-A1350

FOAM SHEET

16

206-54-A1360

FOAM SHEET

17

206-54-A1370

FOAM SHEET

Выбрано товаров: 17