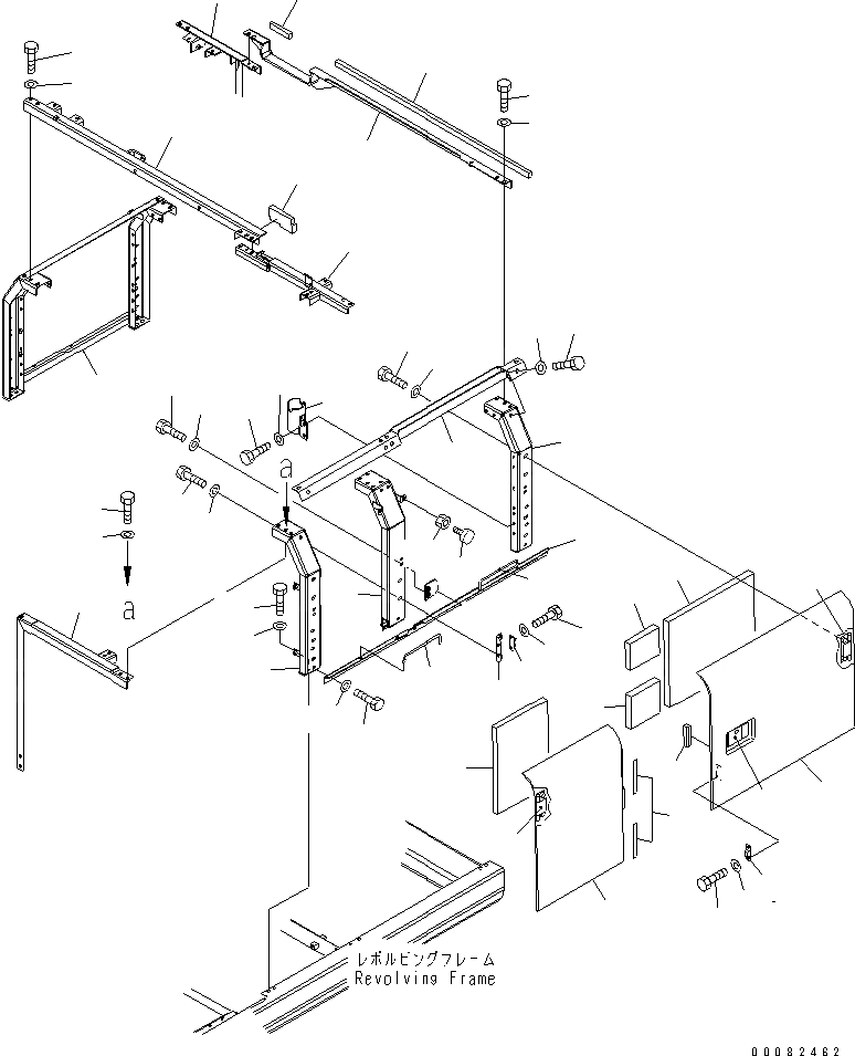
Запчасти Komatsu PC270LC-7L ЛЕВ. ДВЕРЬ (КАБИНА) ЧАСТИ КОРПУСА

Схема запчастей Komatsu PC270LC-7L - ЛЕВ. ДВЕРЬ (КАБИНА) ЧАСТИ КОРПУСА
1
2
3
4
5
6
7
8
9
10
11
12
13
14
15
16
17
18
19
20
21
22
23
24
25
26
27
28
29
30
31
32
33
34
34
35
36
37
38
39
40
41
42
43
44
45
46
47
48
49
50
51
52
53
54
55
56
57
FIT
1:1
100%

Артикул

Название

Примечание

Количество

1

20Y-54-61143

COVER

2

20Y-54-63410

HINGE (WELDED)

3

20Y-54-63390

SHEET

4

20Y-54-61132

COVER

5

198-54-41982

LOCK ASS'Y

6

20Y-54-63410

HINGE (WELDED)

7

20Y-54-61482

SHEET

8

205-54-53550

DOVE TAIL

9

01010-80612

BOLT

10

01643-30623

WASHER

11

01010-81230

BOLT

12

01643-31232

WASHER

13

20Y-54-61311

FRAME

14

20Y-54-61322

FRAME

15

20Y-54-61331

FRAME

16

20Y-54-61341

PLATE

17

01010-81225

BOLT

18

01643-31232

WASHER

19

20Y-54-61361

FRAME

20

01010-81230

BOLT

21

01643-31232

WASHER

22

20Y-54-28170

BRACKET

23

01010-81230

BOLT

24

01643-31232

WASHER

25

205-54-51970

DOVE TAIL

26

01010-80616

BOLT

27

01643-30623

WASHER

28

20Y-54-61470

PLATE

29

01010-81230

BOLT

30

01643-31232

WASHER

31

20Y-54-61371

BRACKET

32

01010-81230

BOLT

33

01643-31232

WASHER

34

20Y-54-29231

BAR

35

20Y-54-11611

STOPPER

36

01580-11008

NUT

37

20Y-54-61451

SHEET

38

20Y-54-61461

SHEET

39

20Y-54-63360

SHEET

40

20Y-54-63370

SHEET

|$76

20Y-54-62240

FRAME

41

206-54-71480

SHEET

42

FRAME

|$80

20Y-54-62230

FRAME

43

FRAME

44

20Y-54-63340

SHEET

45

20Y-54-63350

SHEET

46

01010-81230

BOLT

47

01643-31232

WASHER

48

01010-81230

BOLT

49

01643-31232

WASHER

50

01010-81230

BOLT

51

01643-31232

WASHER

52

01010-81230

BOLT

53

01643-31232

WASHER

54

20Y-54-61431

PLATE,(SEE FIG. M1140-01A0)

55

20Y-54-62220

FRAME,(SEE FIG. M1120-01A0)

56

20Y-54-61261

FRAME,(SEE FIG. M1160-01A0)

57

20Y-54-62210

FRAME,(SEE FIG. M1120-01A0)

Выбрано товаров: 59