Запчасти Komatsu PC270LC-8 ЭЛЕКТРИЧ. ПРОВОДКА, АККУМУЛЯТОР КАБЕЛЬ ДЛЯ DISCONNECT ПЕРЕКЛЮЧАТЕЛЬ (№7-) ЭЛЕКТРИЧ. ПРОВОДКА, ЕС ARRANGEMENT

Схема запчастей Komatsu PC270LC-8 - ЭЛЕКТРИЧ. ПРОВОДКА, АККУМУЛЯТОР КАБЕЛЬ ДЛЯ DISCONNECT ПЕРЕКЛЮЧАТЕЛЬ (№7-) ЭЛЕКТРИЧ. ПРОВОДКА, ЕС ARRANGEMENT
16
15
9
17
18
8
9
8
12
13
11
19
20
21
21
20
7
6
5
3
2
1
14
4
4
10
FIT
1:1
100%

Артикул

Название

Примечание

Количество

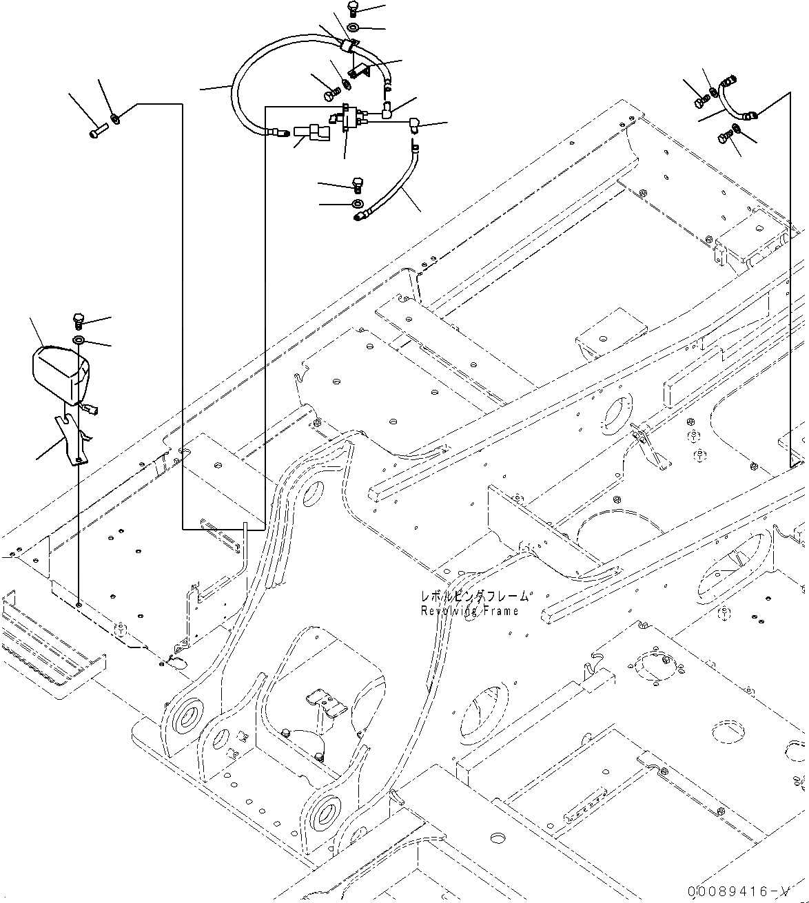
1

08068-00001

Switch, Battery

2

08028-43035

Cable, Ground

3

08028-EC090

Cable, Ground

4

08038-00035

Cap, Terminal

5

04434-52712

Clip

6

07095-20419

Cushion

7

203-62-56381

Bracket

8

01010-81020

Bolt

9

01643-31032

Washer

10

01245-00830

Screw, Hexagon Socket Head

11

01643-70823

Washer

12

01010-81025

Bolt

13

01643-31032

Washer

14

08038-22511

Cap

15

21T-06-32810

Working Lamp Assembly

15

421-06-23330

Bulb, 70watt

16

20Y-06-41690

Bracket

17

01010-81230

Bolt

18

01643-31232

Washer

19

08028-43030

Cable, Ground

20

01010-81020

Bolt

21

01643-31032

Washer

Выбрано товаров: 22