Запчасти Komatsu PC270LC-8 ЭЛЕКТРИЧ. ПРОВОДКА, ЭКСТРЕНН. ПЕРЕКЛЮЧАТЕЛЬ (№7-) ЭЛЕКТРИЧ. ПРОВОДКА, ДЛЯ АВСТРАЛИИ

Схема запчастей Komatsu PC270LC-8 - ЭЛЕКТРИЧ. ПРОВОДКА, ЭКСТРЕНН. ПЕРЕКЛЮЧАТЕЛЬ (№7-) ЭЛЕКТРИЧ. ПРОВОДКА, ДЛЯ АВСТРАЛИИ
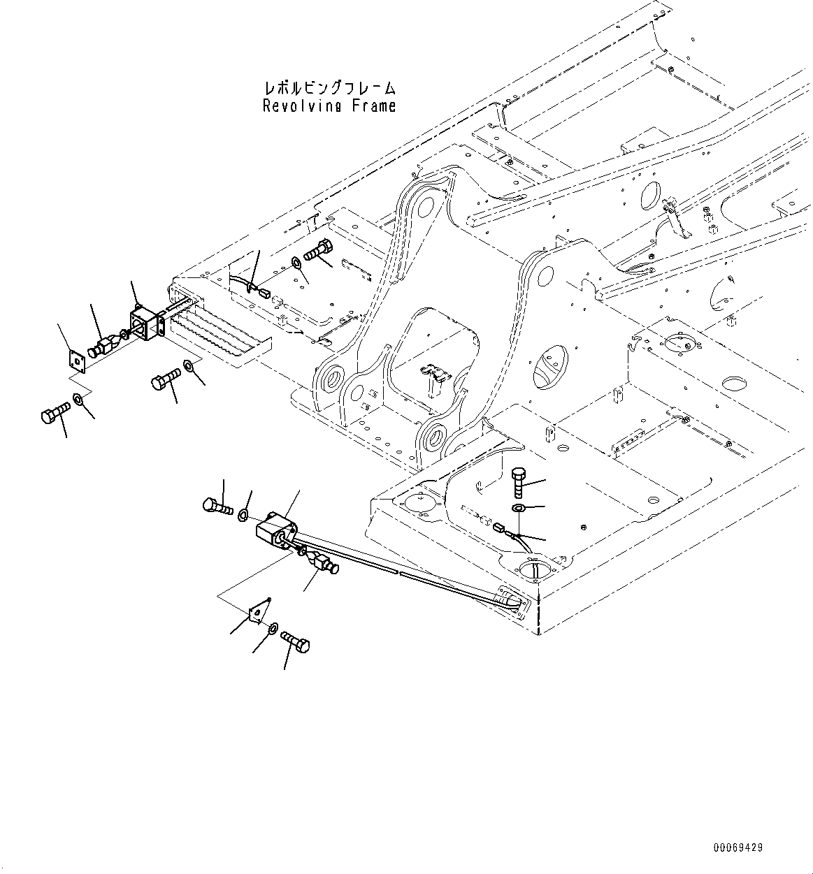
17
16
15
12
11
10
9
8
7
6
5
4
2
1
13
14
17
15
16
3
FIT
1:1
100%

Артикул

Название

Примечание

Количество

1

207-06-75440

Cover

2

207-06-75460

Cover

3

207-06-75430

Wiring Harness

4

01010-80616

Bolt

5

01643-30623

Washer

6

01010-81225

Bolt

7

01643-31232

Washer

8

207-06-75451

Cover

9

42C-Z89-2430

Plate

10

207-06-75430

Wiring Harness

11

01010-80616

Bolt

12

01643-30623

Washer

13

01010-81225

Bolt

14

01643-31232

Washer

15

04434-51012

Clip

16

01010-81225

Bolt

17

01643-31232

Washer

Выбрано товаров: 17