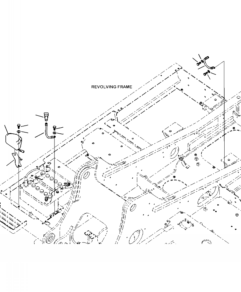
Запчасти Komatsu PC270LC-8 E-A ПЕРЕДН. ЛАМПА РАБОЧ. ОСВЕЩЕНИЯ ЭЛЕКТРИКА

Схема запчастей Komatsu PC270LC-8 - E-A ПЕРЕДН. ЛАМПА РАБОЧ. ОСВЕЩЕНИЯ ЭЛЕКТРИКА
11
10
9
11
10
2
5
7
3
9
8
4
1
6
FIT
1:1
100%

Артикул

Название

Примечание

Количество

1

08028-43030

CABLE

2

08038-22511

CAP, TERMINAL

3

01010-81025

BOLT

4

01643-31032

WASHER

5

21T-06-32810

LIGHT ASSEMBLY, WORKING

|$5

421-06-23330

BULB, 70 WATT

6

20Y-06-41690

BRACKET

7

01010-81230

BOLT

8

01643-31232

WASHER

9

08028-43030

CABLE

10

01010-81020

BOLT

11

01643-31032

WASHER

Выбрано товаров: 12